Next Hydroponic Plant
ARCHITECTS
Manuel Cervantes Estudio
STRUCTURE
Mauricio Pantoja, Fernando Calleja
PROJECT ARCHITECTS
Manuel Cervantes, Lizett Matsumoto
BUILDING SERVICES
Iesh, Samuel Nischli
PHOTOGRAPHS
Rafael Gamo
YEAR
2014
LOCATION
Mexico
CATEGORY
Office Building
Text description provided by architect.
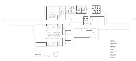
Located between two production warehouses of leafy green vegetables, the project consisted of resolving the location of offices in a space that made emphasis on the constant interaction of the areas that comprise the administration.
To promote a friendly atmosphere, take distance from the corporate condition, and try to approach a community working for common purposes.
As in the case of other projects, I faced a site area that has no limits in the ordinary concept of lot or property. The context consists of agricultural fields that generate deep horizons.
This became the second aspect I wanted to address: how to contain work spaces, bring a human scale to the whole, and provide visual breaks.
I took advantage of the proximity to one of the production plant warehouses to visually involve the production process.
The program is split into a set of volumes separated by short distances, a condition that generates space for green finishes which at the same time cause mobility and encounter, either in the gardens or in the main courtyard.
The project is covered by a slab linking the volumes and giving shade, thus, the plant becomes permeable to the wind and protected from the sun, letting daylight through a hole that opens to the sky.
We reserved one of the courtyards for the artist Jeronimo Hagerman to produce a piece there. He decided to take the yellow color of the protective bands for mosquitoes inside the plant to paint the walls of the courtyard.
Usually, Hagerman uses vegetation to build his pieces, and in this case he used Cissus Antartica to create a maze of benches and green curtains, which refer to the hydroponics system used in Next.


















