Casa Munita Gonzalez
ARCHITECTS
Arias Arquitectos, Surtierra Arquitectura
AREA
275 m²
YEAR
2010
LOCATION
Batuco, Chile
CATEGORY
Houses
Text description provided by architect.
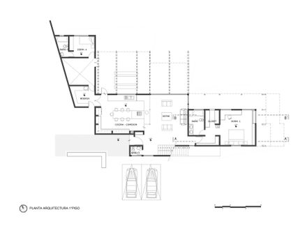
The Munita González House is located in a suburb area, twenty minutes from the center of Santiago, in Batuco, Lampa. It’s a single-family house of approximately 275 m2 situated in a flat plot of 5000 m2.
For the family composed of six persons, the program is developed from the common spaces where the kitchen/dining-room is the main space, connected. The first floor to the living and at the second floor to the children living with double height.
Besides, the first floor includes a main bedroom with private bathroom and the second one, three bedrooms with shared bathroom and a service bedroom.
One of the central elements of the house is the rammed earth wall made with clays of different colors which divide the kitchen from the living.
In it there is inserted the heater of slow combustion that works like the main heat source in winter.
All the doors and windows are made of recycled oak wood with glass type termopanel and the floors are also made of recycled wood.
Both the constructive system and the completions consider in its entirety recycable materials.
The goal of the project is to have a minimal impact on the environment and the maximum use of the passive energies. The constructive system is based on Terra-Panel to assure the thermal efficiency of the housing.
Which is constituted of panels of welded wire mesh of steel folded, filled of light earth on a main structure composed of beams and steel pillars.
For the evacuation of served waters is used the system Tohá or Lombrifiltro in which the waters are re-used for irrigation.
The architectural design of the house is determined in terms of privacy, thermal comfort, and the necessary protection of the earth coating against the action of the climate.
Then, as the erosion by wind and rainwater is one of the major threats to the earth, one eave is projected on the north facade's cover and one sloping cut in the east facade's volume.
Closing toward the south where is located the access to the house and opening the views toward the north courtyard.
The roof is curved and raised to illuminate the corridors and obtains a habitability with plenty of natural light inside.
This housing presents an image absolutely contemporary in design and spatiality, being a concrete example of the validity of the earth as a contemporary building material.




































