Wuxiang Mountain Qiu Hu Station
ARCHITECTS
Mix Architecture
CONSTRUCTION DRAWING DESIGN
Jiangsu Construction Engineering Design & Research Institute Co. Ltd.
DESIGN TEAM
Ziye Wu,Siyuan Ni,Suning Zhou,Tao Tang,Bin Peng,Yu Xin(Intern)
CONSTRUCTION DRAWING TEAM
Fang Zhuang,Juan Chen,Kai Chen,Haoliang Fan,Kaihui Wang,Zhenyu Zhang,Yajun Wu,Zhengqing Dai
CLIENTS
Nanjing Lishui Business Tourism Group Wuxiangshan Scenic Area Tourism Development Co.
WRITER
Ziye Wu
PHOTOGRAPHS
Xiaobin Lv
AREA
977 m²
YEAR
2021
LOCATION
Nanjing, China
CATEGORY
Tourism
PROJECT BACKGROUND
The project is in Wuxiang Mountain National Forest Park, Lishui District, Nanjing. The site has lush vegetation and beautiful scenery.
One side is a mountain road and towering Metasequoia forest, and one side is a continuous mountain with dense bamboo forests.
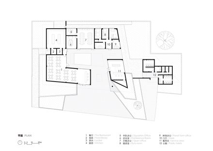
Due to the need for the development and renewal of the scenic area, it is planned to rebuild the original forestry office space and expand the functions of small-scale sales services, tourist consultation, and rest, making it a node station for park management and tourism.
At the same time, the owner put forward requirements at the beginning of the design, hoping to use a courtyard as a prototype for operation.
Under the influence of these former conditions, the combing of internal and external functions, the integration of the courtyard prototype and space, and how to respond to nature have become the main issues for the design.
DESIGN THINKING
The design begins with the integration of relatively defined spatial layouts and functions.
On the basis of the courtyard, we split the function into two L-shaped parts, one part is the office-based internal space, the other part is the tourist service-oriented external space.
The two sections are dominated by the two angled L-shaped slope roofs, which interlaced and twisted into eaves in the inner courtyard.
Finally, the amount of roof with the intention of stacking the front and back of traditional mountain forests is formed.
Thus, the landscape platforms and staggered folded roofs that gradually raise and hide the walls become the main body of the organizational space, and together with the back mountains, they retreat and misplace each other to fill the shortcomings of the mountain at the site, and show the level of near, in some distance and far, so that the architecture and environment can be better integrated.
Under the treatment of this physical relationship, the facade of the building disappears, and the perception of the building by the visitors along the road has become a landscaped terrace that conforms to the terrain and a layered roof that stretches and floats.
"Skylight" is introduced into the design as an element that changes the internal lighting and guides the space trend.
In the volume related to the entrance and public areas, flat skylights and trapezoidal openings introduce skylight, which can clearly guide the main space even when the facade is weakened.
The lateral skylights are used in functional rooms such as offices and restaurants. They can better meet the lighting requirements and at the same time reduce the impact of direct light on the use of space.
CONSTRUCTION STRATEGY
Due to the short schedule and uncontrollable construction process, we also set up relevant strategies in the design to reduce its impact.
First of all, the building itself uses the most common concrete frame structure as its body and utilizes the huge gap between the roof and the suspended ceiling, so that a large amount of structural height, construction errors, and equipment space are resolved in the gap.
Secondly, in the choice of materials, for the roof and landscape terrace where is the central point of view, we use two stacked materials, blue tiles, and rubble, and make the high-precision glass and window boundary details hide in the shadows they create.
This ensures that even when the construction level is limited, the densely accumulated texture of the material can still be presented, interacting with the environment.
POSTSCRIPT
The completed building extends its space and weakens the sense of volume, and the gap between the eaves and the terrace "limits the field of vision". Allowing visitors to focus their feelings on the natural greenery in the environment rather than the road.
In the end, the building stands out as a tourist station with a traditional atmosphere and modern space experience in the mountains and forests, intertwined with nature.
























