Ty-Hedfan
ARCHITECTS
Featherstone Young
AREA
2400 ft²
YEAR
2009
LOCATION
United Kingdom
CATEGORY
Houses
Text description provided by architect.
Ty-Hedfan is a new house perched above a river in a small village at the top of a valley, five miles from Brecon and the beautiful Brecon Beacons National Park.


The site is quite unique, sloping down to the confluence of two rivers, Ysgir Fach and Ysgir Fawr, that run across the length of the property. Ty-Hedfan, meaning 'hovering house' takes full advantage of this river side location.
Because of a statutory 6m no-build zone along the river bank, it cantilevers the main living areas up to the river bank and elevates them amongst the trees.
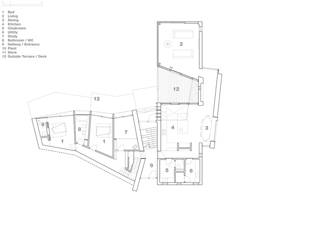
The house is a further exploration of the practice's interest in highly site specific and contextual architecture, taking its cue from the traditional Welsh long house form, using local materials such as slate and stone and by fully utilizing the typography of the site to create a striking and unique form. The house totals 2400sqft (223sqm) of internal living space which is split into two quite differently constructed wings:
The main house wing has the cantilevered living room and a double height kitchen and dining spaces that open onto an elevated courtyard overlooking the garden, river and countryside.
The upper floor of this wing, partially within the roofspace, contains 2 bedrooms and bathrooms.
The second wing is perpendicular to the first and partially buried into the sloping ground. It has a gently sloping green sedum roof that appears to be an extension of the garden behind.
This wing comprises two guest bedrooms and a study room with bed mezzanine, all with full height windows and doors opening up onto a riverside deck. Punctuating the green roof are irregular shaped rooflights bringing ample daylight into this semi sunken area.




















