
Polo Dot Office Park
ARCHITECTS
Machado Silvetti
CLIENTS
Irsa Propiedades Comerciales
THERMOMECHANICAL INSTALLATION
Estudio Echeverría Romano
SANITARY INSTALLATION AND FIRE
Estudio Labonia
LANDSCAPE
Grupo Landscape
LANDSCAPE ADVISOR
Grupo Landscape
COLLABORATORS
Anabella Ullo, Joaquín Deutsch
LEAD ARCHITECTS
Rodolfo Machado, Jorge Silvetti, Nicolas Viterbo
LEED ADVISOR
Nrg-ar.
HALL INTERIOR DESIGN PROJECT
Estudio Zanotti.
ELECTRICAL INSTALLATION
Mackinlay Vignaroli Sa.
MANUFACTURERS
Indusparquet, Neolith, Aluman, Cg, Destefano, Estudio Cabeza, Grupo Moras, Ferrum
DESIGN TEAM
Agustín Mendiondo, Mario Haro, Sofía Forti, Nadia Stancanelli, Agustín Aguirre,
Tadeo Itzcovich Flavia Dramisino, Manuel La Sala.
ARCHITECTURE AND IDEAS COMPETITION TEAM
Guillermo Pressiani, Lucia Valentin, Luciano Raichi, Leandro Cassissa, Santiago Darquier, Ignacio Bollini
CONSTRUCTION MANAGEMENT
Ianuzzi Colombo: Gualter Colombo, Martin Saidman, Carlos Pellegrini, Sebastian Villagra,
Florencia Zungri, Mariana Llauger, Laura Lopez, Oscar Coulasso
AREA
56000 M²
YEAR
2019
LOCATION
Buenos Aires, Argentina
CATEGORY
Public Space, Institutional Buildings, Landmarks & Monuments
Text description provided by architect.
Machado Silvetti has deep experience revitalizing and repurposing existing buildings and spaces. Its recently completed Building Z in the Polo Dot Office Park in Buenos Aires, Argentina offers a timely example of how offices can be designed to adapt to current and future needs, and how existing structures can be renovated to reflect contemporary aesthetics.
The new office building is a repurposed, former Philips electronics factory, which was completed in 1935 and abandoned in 2000. In December 2019, the Machado Silvetti design was recognized by the Council on Tall Buildings and Urban Habitat with an Award of Excellence: Renovation Award.
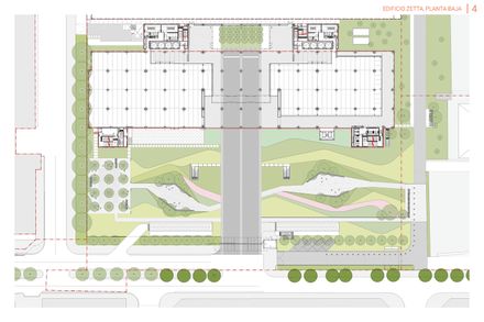
Located at the intersection of two major highways in the Saavedra neighborhood of Buenos Aires, Polo Dot Office Park was developed by IRSA (Inversiones y Representaciones Sociedad Anónima) and master planned by Machado Silvetti.
Envisioned as a vital element of the region’s urban expansion, Polo DotT was designed to rejuvenate Buenos Aires’ metropolitan identity and create accessible, contemporary office space for the city’s growing workforce.
Machado Silvetti’s masterplan configures the office park around a continuous public plaza, offering employees the vital opportunity to access fresh air and greenspace.
In designing these tree-shaded courtyards, lawns, and fountains, Machado Silvetti prioritized employees’ physical and mental wellbeing, creating spaces for respite and relaxation.
“This is for me the first important project with the Machado Silvetti Buenos Aires office, in a highly visible site and for a prestigious client,” said Rodolfo Machado, Machado Silvetti principal and cofounder.
“It necessitated—and received—careful attention to both the character of the existing structure and to a vision, realized with many excellent collaborators, of what offices like Building Z offer for the future, with ample personal space, large circulation areas, generous social spaces and accessible greenery.”
To repurpose the former factory building, Machado Silvetti carved out the four central bays of the structure’s first three floors into a monumental lobby, heightening its visual impact.
Within the open air lobby, escalators will—in a second phase—connect to the upper-level of the adjacent mall courtyard, providing new public access to the mall via Building Z.
The expansiveness of the lobby is mirrored in the flexible layout of the offices, which can accommodate diverse work and be adapted for evolving technology and arrangements that meet health and safety protocol.
Machado Silvetti reinforced two longitudinal interior structural lines of the original factory to add a seemingly independent four-story building on top of the existing seven stories.
This bold approach generates a powerful sight when approaching from the adjacent highways, the distinctly renovated building appears, as Machado says, “like a vitreous cloud laying low in the horizon.”
A double-height, 19,000 square-foot interior space between the existing building and the addition is wrapped by a new panoramic terrace, offering access to fresh air and greenspace without leaving the building.
These column-free floors articulate a different architectural language from the building below it and exemplify Machado Silvetti’s ability to create structures that celebrate a site’s existing legacy while updating in a contemporary vocabulary.
Employees can access Building Z through the newly created boulevard, connecting to the major artery of Avenue General Paz, or through a new, two-level parking garage below the building. These open pathways help circulation and improve access between the office park, shopping center, and surrounding neighborhood.
In phases to be developed in the near future, Polo Dot will add a second office building, plus a commercial tower, containing a hotel and offices surrounding the Polo Dot Plaza.































