ARCHITECTS
José Adrião Arquitectos
STABILITY
Ara – Alves Rodrigues E Associados; Fernando Rodrigues
SERVICES
Acribia; José Andrade, Paulo Rodrigues
TECHNICAL CONDITIONS CONSULTANT
Excepto. Lda; Hélder Neves
WEATHERING CONSULTANT
Wee – Wide Endogeneous Energy Solutions; Maria João Rodrigues, João Parente
ARCHITECTURE PHASE 01
Tiago Mota (Project Manager), Carla Gonçalves, Luís Valente, Rui Didier, Tatiana Mourisca
ARCHITECTURE PHASE 02
Ricardo Aboim Inglez (Project Manager), Margarida Lameiro, Rute Ribeiro, Tiago Mota
CONTRACTOR
X-log
PHOTOGRAPHS
Fernando Guerra | Fg+sg
YEAR
2013
LOCATION
Lisboa, Portugal
CATEGORY
Houses
Text description provided by architect.
Located on a narrow street of Alcântara district, the existing building didn’t possess any particular quality.
Apart from a rigorous and well balanced façade – which brings character to the surrounding urban fabric- all of its interior was in imminent collapse.
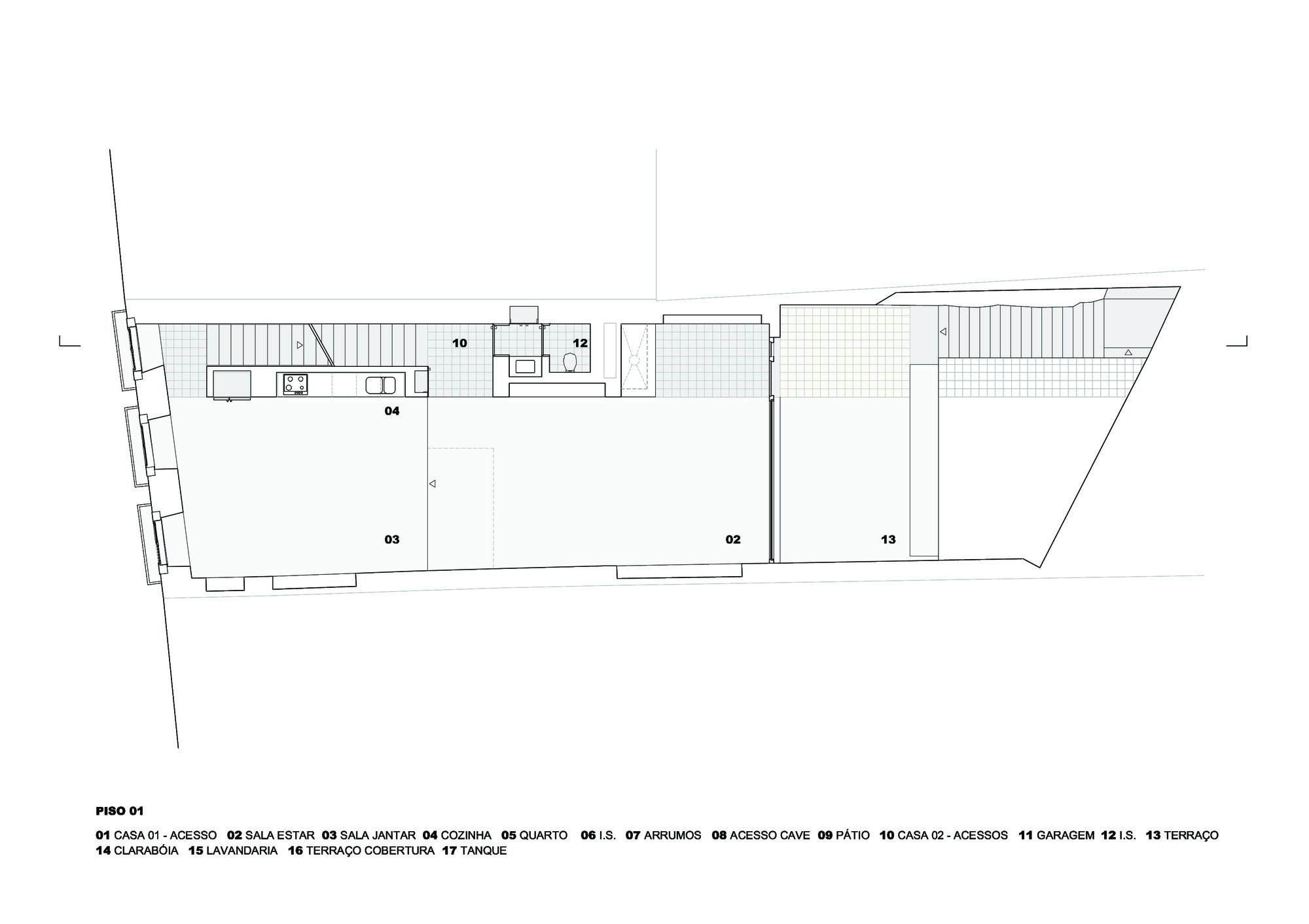
The maximum volume allowed by local legislation was built within a plot of 7 meters wide by 22 meters long.
Space was desired. In order to achieve maximum height, the main façade was maintained, Should it had been demolished, the new building had to be smaller which would have affected the available in every interior floor.
A storage basement was built and the building depth was extended to maximum allowed.
– 15 meters plus 7 meters for the patio. On the roof, instead of a pitched roof, a terrace was built.
This way the sky was gained at the top as well as views towards the surrounding. Inside, space is longitudinally divided into two separate areas.
The first area houses technical facilities, ducts, circulation, kitchen and toilets. The second area is just free space.
The building – with two interconnected houses – opens to the outside towards the patios and terrace.
On the upper house a large skylight brings daylight into the soc ial areas and bedrooms.
Finishes are crude in order to stress the desired informal character of the house.
Storage on the social area have no doors. On the terrace, there’s a water tank and a bathing area. In the summer, people walk around barefooted, almost naked.
























