
Finlandia Dwellings
COLLABORATORS
Eva Cotman, Marion Detuncq, Wilson Melo
SUSTAINABLE ENGINEERING
Sud Energies Renovables Sl.
YEAR
2013
LOCATION
Barcelona, Spain
CATEGORY
Housing
Text description provided by architect.
Two couple friends entrusted us the design of their homes after we win a private a competition, restricted to four architecture teams, in 2009.
The idea was simple: build two homes on a site between two buildings who had been acquired in the district of Sants, in Barcelona, and that had been object of previous projects already outdated due to the economic crisis.
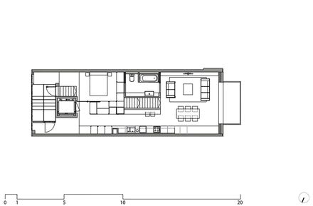
The design of this two family homes integrates all common spaces required by law (staircase, elevator, lobby, etc...) into spaces of actual use by the inhabitants of the house.
The idea of the staircase facade as a balcony arose almost naturally. It is a common staircase that creates small balconies and viewpoints that incorporate private lateral spaces for each dwelling.
This staircase leads to the roof of the building and also to housing floor number 2.
The elevator is positioned in a second plan, embedded between the two homes not to block the view to the street from the balconies at the facade.
As a result, the design of each dwelling managed to get a clean rectangular form, without staircases or other “obscure” elements, achieving large areas with natural illumination and ventilation, between a quite narrow bay (just 5,50 meters).
The two houses are arranged in ascending and descending duplex to develop similar programs as much as possible.
The ground and second floors contain the main housing programs while the first floor is halved lengthwise to accommodate the program rooms in houses with cross ventilation.
The interior stairs are placed in superposition to save floor space. Harnessing the most of space as possible is also consistent with a strategy of economic savings throughout the project.
All the components of the building have been chosen with a criterion of proximity and ease of execution.
Nowadays, a treated wood lattice protects and adds warmth to this semi outdoor space that functions as an intermediate gallery, where already grow plants, bicycles and tricycles.

























