TJR - Workshop Living Place
ARCHITECTS
MasConceptual
MANUFACTURERS
AutoDesk, REHAU, Ariston, Rotoplas, Trimble Navigation, Tromen
LOCATION
Luján, Argentina
CATEGORY
Houses, Offices, Sustainability
Text description provided by architect.
We understand architecture as a logical, simple and effective answer to its natural and cultural environment.
We seek to bring solutions after a careful study, with a design that adapts to the context, standing the test of time and achieving a lower consumption of resources in its life cycle.
A couple of young local artists with one daughter and another on the way seek to make a house outside the city. Lovers of nature and gastronomy, their project includes a workshop space where they are able to work, teach and have friends and family over.
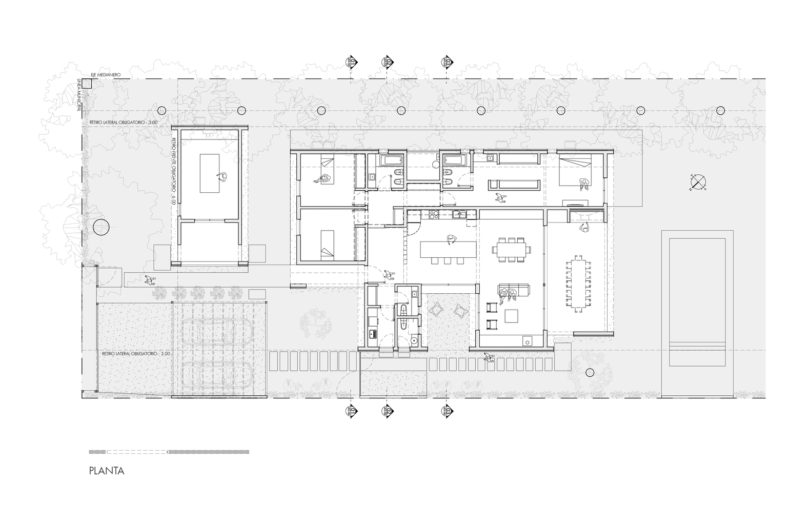
The land is located in a neighborhood of isolated houses characterized by an old grove, just outside the city of Luján. It has a peculiarity: the southeast wall, where the main rains and winds of the area come from, is formed by a “natural plant wall” of great bearing pines called casuarinas.
NATURAL ENVIRONMENT ANSWER
A corrugated sheet metal shell protects the family’s daily life.
The shape of the roof’s cover and its free runoff simplifies the response to the environment. Its southeast facade, under the line of casuarinas, seeks to be as waterproof as possible. The northwest facade breaks, generating different patios, in search of light and connection with the land.
The type of surface and the vertical placement of the prepainted metal sheet helps to avoid any accumulation of dirt, unlike other traditional materials. Its color improves aging and it has a lower thermal amplitude than the rest of the colors on the market.
The thicker walls in the opposite direction of the slopes have an athermal plaster and remain protected by the roof cover’s overhang.
CULTURAL ENVIRONMENT ANSWER
The simple and traditional construction system mainly allowed greater thermal insulation with the incorporation of coating.
We assured a construction of "solid" appearance and touch, respecting the local idiosyncrasy that rejects other methods.
The workshop, a place for art production and teaching, is located at the front, next to the garage. Both are attached to the house while respecting its privacy.
A lateral external circulation opposite to the private sector works as a “social” access for guests and service, joining the front with the house’s courtyards, gallery and pool.
The kitchen takes up a central place in the project as in our client's life. The “contemplation patio” illuminates and accompanies the daily use of the public space. A gallery completes the space’s social use and protects the living place at the same time.
For safety, privacy, and maintenance we decided to strategically locate the largest openings only in the public space and in relation to the house’s patios, resolving the private space in a more compact way.
In this way we achieve a house of simple execution, low cost, great insulation, a low level of wear and a lower consumption of resources during its useful life.
This is an architecture where each design decision sought to respond to its environment. An architecture that adapts, not that is imposed.


























