
Library Renovation in Nanjing Normal University
ARCHITECTS
Duts Design
ARCHITECTS TEAM
Tao Wan, Yingqi Hu, Bruno Rodriguez
ARCHITECT IN CHARGE
Ling Zhong
INTERIOR DECORATION
Michael Shi, Shuang Zhang,guigui Zhang
INTERIORS TEAM
Michael Shi, Jiayu Wan,zhe Xiang, Guangjian Zhou
LANDSCAPE DESIGN
Laurent
THE CLIENT
Gemdale Properties And Investment Corporation Limited
AREA
4170 m²
PHOTOGRAPHS
Qingshan Wu
YEAR
2020
LOCATION
Nanjing, China
CATEGORY
Library, Renovation
FOREWORD: "NO. 78 BANCANG STREET" IN NANJING.
After nearly 40 years of rapid development, Chinese cities have reached the critical point of large-scale spatial growth is unsustainable and land development space is severely limited.
Both the government and enterprises are actively exploring an innovative way of urban development and construction, thinking about how to transform the existing land’s function and rebuild that structure through renewal and regeneration, so as to integrate with urban innovation and a new economy.
In July 2019, the Zijin Campus of Nanjing Normal University, with a long history and a simple style ended its mission as a university campus.
The campus covers a total area of 110,000 square meters, and the “above-ground” building area is 80,000 square meters. It leaves many campus memories for its past students and the cultural link between this university and the city.
The campus is located under the "Purple Mountain, beside Xuanwu Lake", with views of the mountains and the lake. A good landscape and a unique ecological environment inside it.
"No. 78 Bancang Street", where human culture and campus memories feelings are overlapped, it constitutes an intellectual, tolerant, and innovative academic atmosphere. Which future this campus is heading to? Is it to keep only the land and make a large-scale innovation, or choose to preserve the campus cultural memory and explore an architecture renovation?
HERITAGE AND INNOVATION
New Urban Cultural Space Transformation and Innovation. DUTS Design accepted the invitation of Gemdale in 2019 to carry out the overall renovation design work of the original Nanjing Normal University Zijin Campus.
Recently, the renovation of the original "library" has been completed. The designer took inspiration from the architectural history and the emotional memory of urban life, and injects contemporary design aesthetics and complex modern life formats into this nearly 70-year-old library.
The rejuvenated library becomes a new landmark cultural center that contains complex functions such as display, business, office, business, and communication, and is full of humanistic life.
The retention of the emotional memory of the "library" as a public cultural building and make it continue to be full of vitality in contemporary life has become the main issue considered by the designer.
After repeated research and scrutiny of the space, architects of DUTS design refined the classic memory points in the original building, retained its overall form and facade outline, and made it more open and modern through modern architectural methods.
"This transformation is "Heritage and Innovation", we retain the human and emotional memory of this site, while make it more harmoniously integrated with contemporary life through modern architectural language.
We did two steps: The first step is to "open", open up the space, make the architectural form more open, and open up the communication between inside and outside; The second step is to "combine", inject a complex format, integrate modern life, and turn it into living space full of emotions, memories, and fresh vitality. " Zhong Ling, founder of DUTS Design and chief architect said.
Prescribing and compounding have brought new opportunities for old buildings. The precious emotional memories of the city have been preserved, looking forward to the future in a more contemporary way.
OPENING: OPENING AND REBIRTH OF THE "LIBRARY."
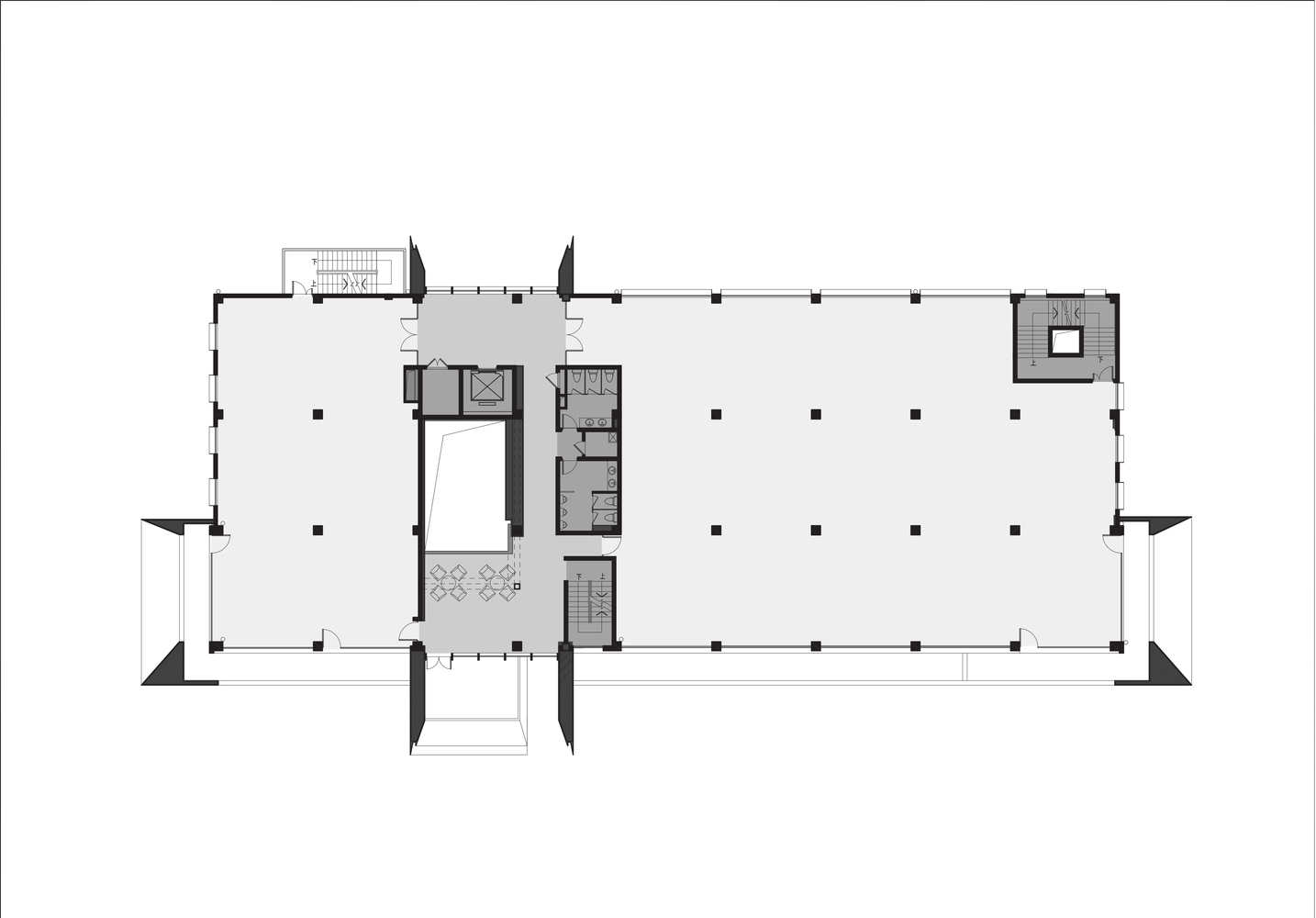
The library on the Zijin campus of Nanjing Normal University has a long history. The new renovation retains the original architectural style, innovatively breaks through the traditional layout, creates a more functional core, and integrates vertical transportation, sunny patios, and shared spaces. The traffic core of the facade is clear and powerful, and the horizontal is transparent and stretched.
DESIGN ELABORATION.
Design Concept: Open "Showcase." The original library has a single function. Protect books and maintain a quiet reading environment to make the building space relatively closed.
The designer transformed the original traffic space into a 24m high public showcase, highlighting its cultural landmark. Increasing openness and sharing also reflect the development direction of modern urban public cultural space.
The designer introduced "mountain viewing platforms" to the building to strengthen the interactive relationship between inside and outside. People in the space can look at the Purple Mountain through the window in the leisure time of communication, absorb the power of nature, and find their inner peace.
"OPENING" OF FLOOR PLAN AND ELEVATION
Architects opened up the plan, reconstructed the original traffic core, ingeniously implanted elevators, toilets, shared spaces, etc., and created a perforated patio space in the core area, using vertical patios to introduce natural light, deepening nature and architecture, time, and interaction between spaces.
In terms of facade modeling, the original composition relationship is maintained, but the originally closed vertical volume is changed to transparent glass, with multiple public platforms.
Here, people’s activities have a stage for display, just like a window to the city, while at the same time they can lean on a railing and overlook the beauty of the purple mountain in the distance. History, function, and landscape resources have formed a perfect fusion under modern design techniques.
THE "OPENED" BOOKSTORE
In order to continue the warm memory of the books in this space, the designer merged the first and second floors of the "library" into an open, transparent, and humanistic high-rise atrium space, with continuous integrity on both sides of the space To define the book wall, the dividing lines of the bookshelves continue to the ceiling to form a continuous arch, which strengthens the spirituality of the space.
At the end, the introduction of natural light becomes an implicit communication between nature and humanity in the space.
COMBINATION: INJECT A COMPLEX BUSINESS FORMAT AND INTEGRATE IT WITH MODERN LIFE.
A diverse and rich lifestyle brings new vitality to the space. Retaining the humanistic atmosphere of the original library, the architect infused it with more complex business scenes of modern urban life, innovatively injecting open cafes, shared offices, dining and food, internet, and ecological technology into the "library" with contemporary methods. ", becoming a community life circle for young urban people.
"What we want to create is a kind of "Growth-able" culture space, which carries the memories of the campus and is also recording the growth of young people in this contemporary city. What remains unchanged is the humanistic feeling in our hearts, preserved in the space."
"Singularity Book store" has become the most emotional space in the "library", and it also brings more possibilities for the library to interact with life aesthetics, art, and social interaction.
Find a book, sit on the steps and read it slowly, or listen to a lecture or visit an art exhibition. A new type of urban cultural space, which brings more vitality to the city on the basis of openness and public welfare in a more modern and inclusive way.
Preserving the cultural atmosphere of the campus, the floor information of the entire building is presented with a unique creative "pencil wall". The sorting combination of 108,000 pens brings shocking visual effects. It also incorporates movies and art-related Cultural information.
WECAFE, shared office and other modern lifestyle formats are combined in the space, bringing more rational thinking. The newly reborn "library" has become a new type of multi-functional complex space and new culture landmark integrating exhibition, business, office, business, event, and urban lifestyle.
New urban development brings more industrial ecological upgrades, and also brings a richer life experience for residents. More and more new complex types of business have penetrated into the urban fabric, showing strong modern human care and cultural experience, making the urban "cultural forest" more lush.






















































