
Floationg Courtyard
ARCHITECTS
TAOA
MANUFACTURERS
Tissot Elevator Translift, Ding Layer DCENG Windows and Doors
DESIGN TEAM
Lei Tao, Zhen Chen, Bozhou Kang, Jing Li, Jinghong Zhang
CONSTRUCTION
Team Sheng Changwei
LANDSCAPE AND INTERIOR
TAOA
ARCHITECT IN CHARGE
Lei Tao
PHOTOGRAPHS
Lei Tao
LANDSCAPE ARCHITECTURE
TAOA
INTERIOR DESIGN
TAOA
ENGINEERING
Team Li Yi
YEAR
2018
LOCATION
Beijing, China
CATEGORY
Renovation, Residential
Text description provided by architect.
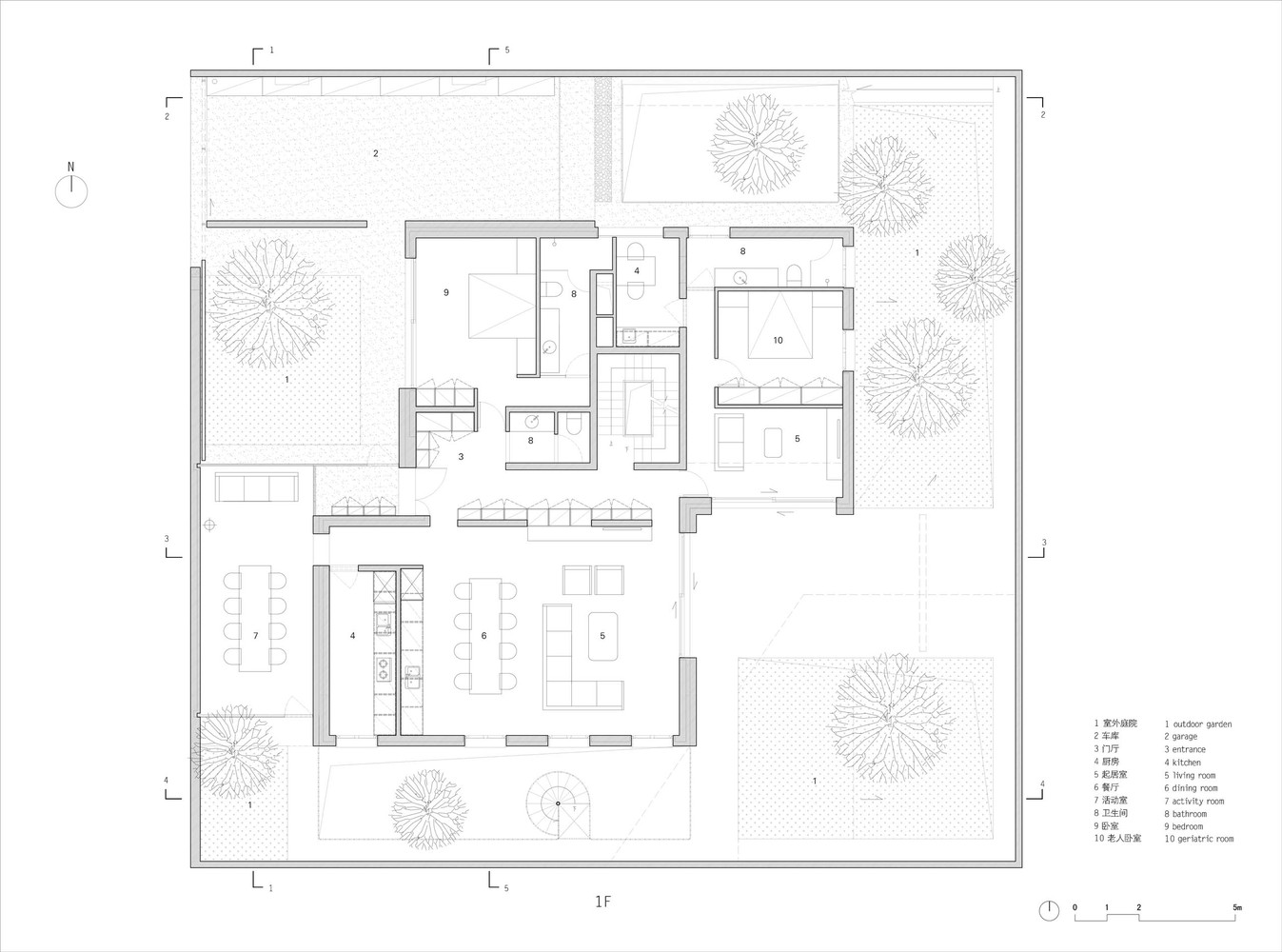
The project is transformed from an old house with two floors above the ground and one floor basement. Vacant space attached to the house is distributed around the building.
The only difference between this villa and its neighbor buildings is that the vacant space on the east side is a gentle slope of 70 cm difference, which makes the project interesting in this villa area.
The building was defined in an abstract way at the beginning of the design process. The idea is to create a place with invisible life boundary and to integrate each unit into a new space. Living area in this project can be extended to all corners.
The space is defined by the floating bare concrete wall, as well as the platform. A gap is formed between the slope and the new space. It is the gap that makes the entire space floating in the air, detached from the original environment and became a new realm.
Different trees and rocks are placed in the space. Only the clear glass divides the interior from the exterior. The new space that is detached from the ground seems to be outside the community.
Two sunken courtyards provide nature and transparency. Besides, they bring varies of spatial levels into the architecture volume and define the space above the ground. Heaviness and strength is increased in this horizontal space.
All the 25 meter-concrete side walls are floating in the air. It creates special tension because of the physical weight of concrete.
The courtyard is extended to the outer space and connected with outside, which makes the courtyard far-reaching. One can always get peace and comfort from strength and emptiness while sitting and walking in it. A unique life poetry is created.
This is a new space generates large amount of freeness. Semi-outdoor space and courtyards are interwoven with each other, creating a rich interior environment with constantly changing light.
Contrary to the urban space, it is easy to acquire quietness and avoid the noise from the city. A new semi-outdoor landscape is created in the living context. The new space is designed for life. The new lifestyle is generated through layers of spatial quality.





















