
IROHA Village Factory
DESIGN TEAM
Daiwa House Industry Co.Ltd.
ENGINEERING
DAI-DAN Company Limited
MANUFACTURERS
Autodesk, Bo&Co., 3Ds, Corona Renderer, Fujiwara Chemical, Toyota, Takachiho Shirasu Corporation, Yamazaki-sangyo
YEAR
2018
LOCATION
Hiroshima, Japan
CATEGORY
Factory
Text description provided by architect.
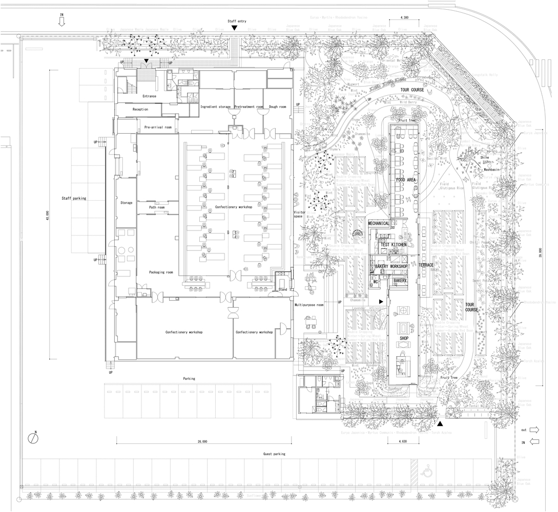
This is a factory of Fujiiya, a long-established maker of the famous momiji manju (maple leaf-shaped Japanese confections) of Hiroshima. We were consulted for the overall plan after designing their store in Miyajima.
The site is in an industrial area developed on a reclaimed land—an artificial environment that lacked human scale. The location was dull and could be considered a calamity of the land-use zoning system.
We thus proposed a place that would function not just as a factory, but to integrate production with research and processing with consumption.
We felt that the concept would tie into the spirit of the confection making, which valued nature and the lifestyles of people while maintaining a close relationship with the community.
Rather than simply manufacturing confectioneries and offering factory tours, we aimed to communicate the business philosophy, the trustworthiness of ingredients, and create an affinity with the people who made the delicacies, hence decided to create “Hatake Labo (Field Laboratory)” that is as large as the factory itself.
In the farm, trees and plants that would bear ingredients such as azuki beans, wheat, lemons, almonds, and olives were planted to create a place to research and educate about food and diet.
In the center of the field, there are long ridges of rosemary, which we elevated to create a space underneath. The test kitchen was placed in the center for diet-related research and new product development.
On both sides, shops and places to eat display confectioneries and breads that were made in the test kitchen. Processes such as “manufacturing,” “processing,” and “consumption” are usually separated by zones, but here, they exist as a part of one cycle.
Users can walk through the circular course in the field and then the touring path of the food factory, before finally approaching the building inside Hatake Labo. The building looks as if it is burrowed in the field, and the dining tables are about the same height as the ground.
Researchers and customers can enjoy their meals while engaging with the food from a perspective different from their ordinary lives.
Right outside the windows, the harvested crops are dried on the poles hooked on the face of the column.
The crops also serve as curtains to block sunlight, while casting tablecloth-like shadows on the tabletops. Gentle sunlight filtered by seasonal crops pours into the building.
As the boundary between agriculture and architecture softly merges, people are embraced by and become one with the crops.


















