
Food Villa Market
YEAR
2013
LOCATION
Thailand
CATEGORY
Market
Text description provided by architect.
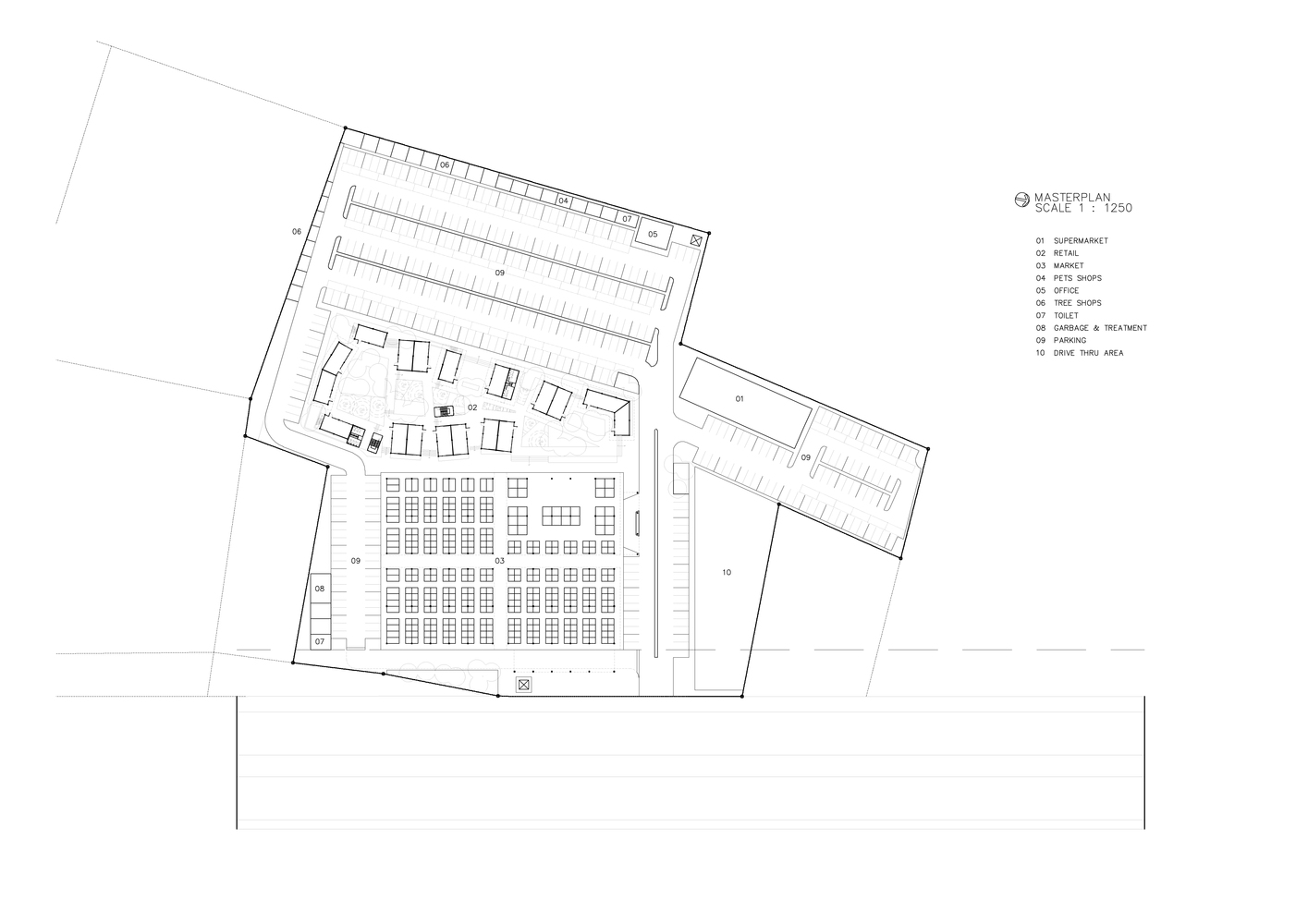
Food Villa Market is a local open-air market open daily features outstanding standard of fresh market, offering a variety of high-quality food, life style shops and many more at a reasonable price.
The building represented a “food production farm”, developed from farmhouses pattern merging each unit together in an order.
The building facade is designed to be a translucent face to let the natural light go through and glow inside out at night .
The ventilation gap is set in two layers, at the top of gable roof itself and between the split levels of each roof as appears in the elevation.
Disordered signess and stuff arrangement have been remained by an architect to represent the ambience of local Thai market.




























