
Bondi House
MANUFACTURERS
AutoDesk, Modinex, Tongue n Groove, AWS (Architectural Window Solutions), Aneeta Sashless Windows
YEAR
2018
LOCATION
Bondi, Australia
CATEGORY
Houses
Text description provided by architect.
CONCEPTUAL FRAMEWORK
Bondi is a vibrant and contemporary community and the design intent reflects this.
There was a determination to create an ambitious and crafted home that responded to the cultural context of Bondi and utilised the client’s talent as a builder whilst negotiating a geometrically unique and heavily looked-upon site.
The challenges born out of a site that runs parallel with a busy street and whose topography drops away steeply were faced collaboratively between the builder, building their own home, and an architect undertaking their first commission.
PUBLIC AND CULTURAL BENEFITS
Given its exposed public location, distinctive material palette and pure geometry, the house stands as a new landmark in the back-streets of Bondi.
The concrete planes and cedar-batten-cladding of the first floor hover above the streetscape and provide a dynamic resolution to the site once occupied by a garage. At night warm light spills out between the battens as the house becomes a beacon in the street.
RELATIONSHIP OF BUILT FORM TO CONTEXT
Set amongst the backdrop of the vernacular semi-detached houses of Bondi, the unique site immediately called for a contemporary response to its architecturally traditional context.
A simple planar form holding the private spaces is elevated above a sunken public pavilion. The concrete garage structure negotiates these two levels and provides as the pivot point between the two volumes.
A veil of cedar battens shields the house’s frontage from onlookers whist the operable northern elevation opens up to the abundant natural light.
PROGRAM RESOLUTION
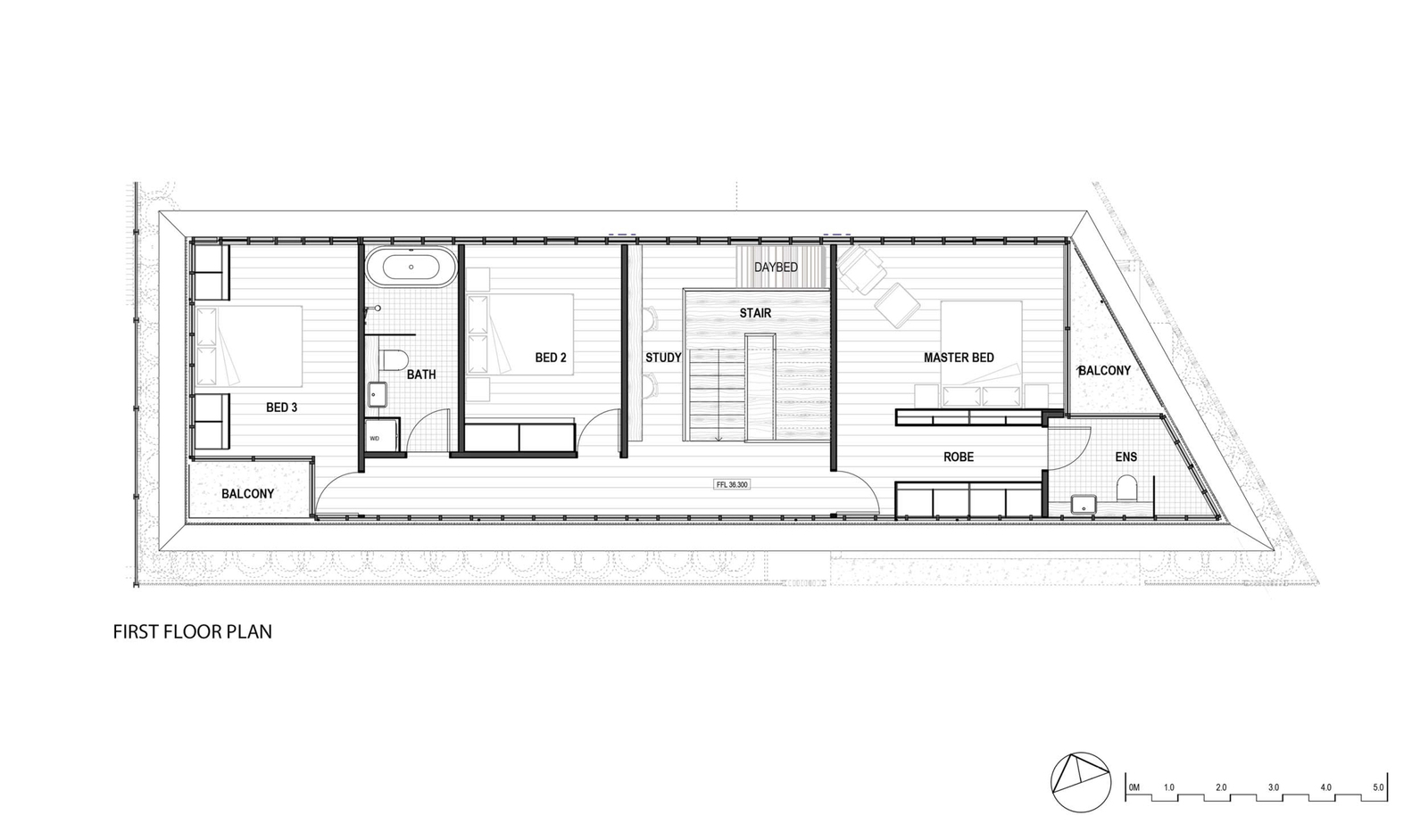
The brief called for a strong connection to the outdoors, privacy from the street and the ability to adapt the building to various thermal conditions. The entire northern façade is operable and allows the building to be fully connected to the landscape.
The requirement for ample natural light whilst maintaining privacy was met by elevating the private spaces above the street and wrapping them in a timber batten screen that allows light in whilst denying a view from the street.
In dropping the ground floor level below the street, a three-storey component of the house was achieved and enabled a maximisation of the allowable floor area whilst staying under the height limit imposed on the site.
SUSTAINABILITY
Echoing the attitudes of the local Bondi inhabitants, a sustainability responsible intent is evident throughout the scheme.
Instead of hiding the photovoltaics away from view, the solar cells are celebrated. They are clearly visible from the public realm and form a strong part of the horizontal planes that hover above the street.
An operable skin of aluminium louvres and timber battens wraps the building allowing it to adapt to thermal/solar conditions. This skin sits in front of a fully operable glazing system that naturally ventilates the entire building.
Thermal mass is located on the ground floor (slab) and southern spine wall – both elements absorbs winter sun and releases it slowly throughout the day. Deep eaves over the ground floor deny solar access to these elements during the summer months.




























