ARCHITECTS
Cia Design Studio
DESIGN TEAM
Cia Design Studio
MANUFACTURERS
Autodesk, Inax, Boss
CONSTRUCTION
Cia Construction Building And Interior
ARCHITECT IN CHARGE
Nguyen Tien Chung, Tran Trung, Nguyen Tien Chung & Tran Trung
YEAR
2019
LOCATION
Tam Anh Nam, Vietnam
CATEGORY
Houses
“The water house” locates in a new resettlement area in Tam Anh, Nui Thanh, Quang Nam, Vietnam. which is annually influenced by the tropical monsoon climate.
All of this gave people here a challenge to brainstorming an idea about building their own house that adapts to all features of the climate.
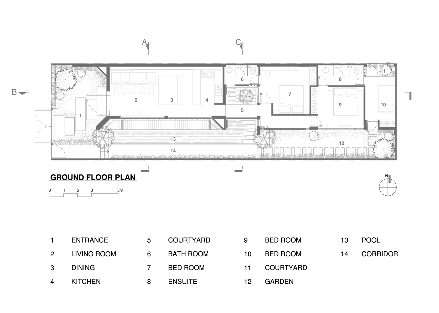
With 7x25 metres of area, The house is designed for a couple and two son. The functions include 3 bedrooms with toilets, a living room, a kitchen.
The owners want a house that could improve their living condition. Started by a rectangular block, we separated it into two cubes connected outside and inside by the buffer space include a porch and a skylight at the center of the house.
The main space include the living and dine area as well as a quiet space located in the cube behind Includes three the bedrooms and two toilet.
The void is placed at the center of the house, which plays as a point to balance the nature.
At this space, nature is appeared with its elements such as trees, natural light, the wind, and rains.
We scrutinized every detail about climate and the sun’s orbit in order to propose solutions for collecting natural lighting, covering sunlight at the West of the main front of the work, taking cool wind of the river behind.
Regarding interior aspect, ideas from tuber furniture locally use to make new ones with the same ideas.
By that, we could alley the solar radiation on the glass walls. We have fully exploited the lake on the side of the house.
In addition, the woody sliding doors were used for letting the living room to be more spacious and well ventilated, furthermore, it helps create an amazing view to admire the sceneries.
After a period of use, the investor feels satisfied with the work that we created. After a period of use, the investor feels satisfied with the work that we created.


























