
Unión Suites
ARCHITECTS
Departamento De Arquitectura, Formataller
CONSTRUCTION
Pavimaq
CLIENTS
Grupo Montemorelos
DESIGN TEAM
María José Melo Gómez
MANUFACTURERS
Daltile, Autocad, Concremex, Garcia's Ladrillos, Interceramic, Mosaicos Eternos, Revit
LEAD ARCHITECTS
Alejandro Ramírez Gasca, Susana Limón Lara, Jorge Alejandro Rivera Gutiérrez
YEAR
2019
LOCATION
Guadalajara, Mexico
CATEGORY
Apartments
Text description provided by the architects.
FORMAtaller and Departamento de arquitectura develop Suites Union project. It is a long-term temporary-stay building located in Guadalajara, Jalisco, Mexico.
The sun is an important factor because it hits directly to the front and back facades. In order to reduce the solar incidence, a lattice membrane was used to cover most parts of the building.
The main shape of the building is like a horseshoe. Then an important mass in the shape of an L rises up leaving a series of semi-open bridges in the rest of the extension.
This is an open courtyard in the center of the building. That can be seen from some of the rooms and the staircase that circulates between the first, second, and third levels.
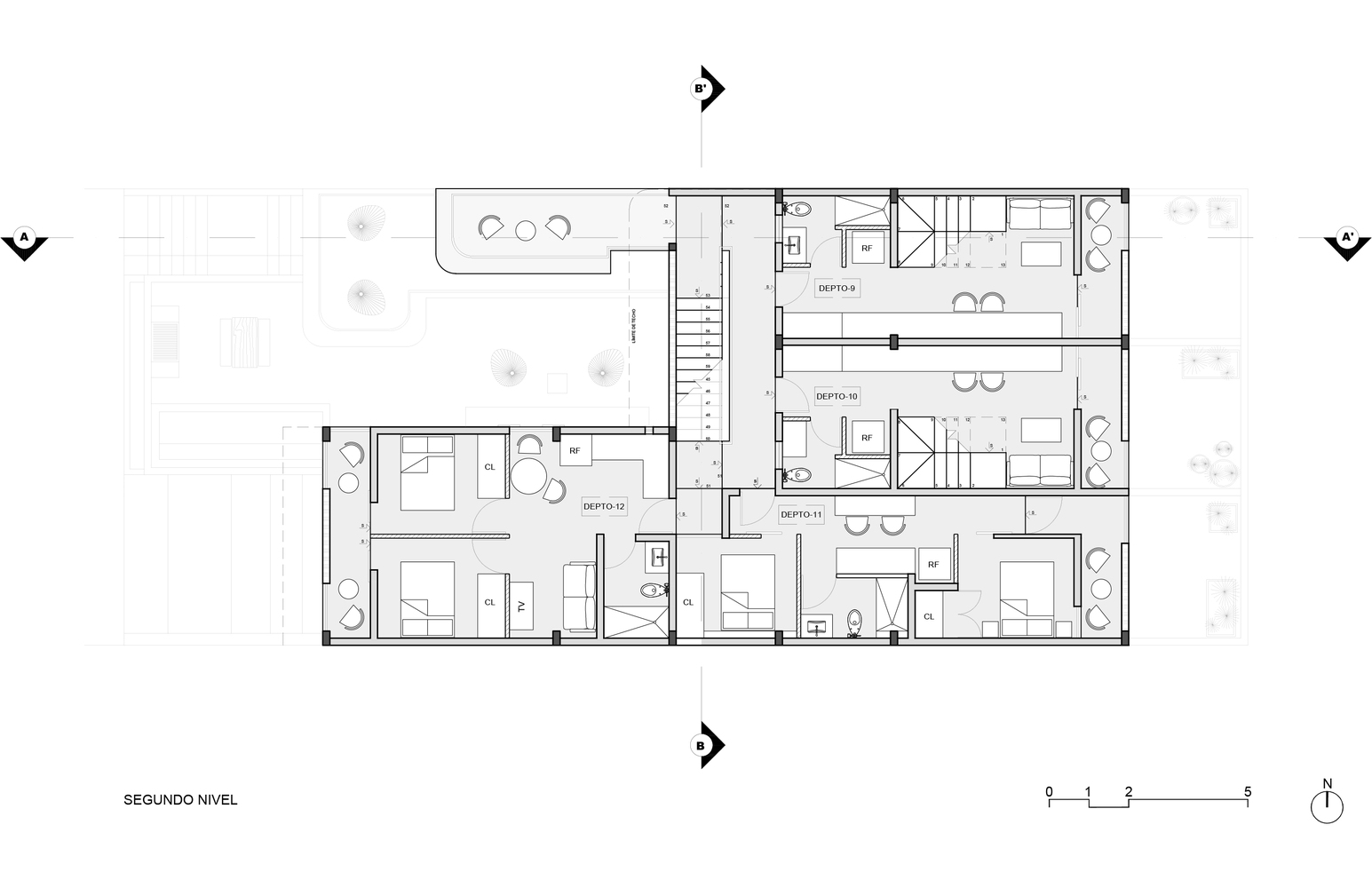
It has twelve housing units with different morphologies to offer a wide range of functional possibilities to different users.
The building has rooms that go from single rooms up to four-person rooms. There is even a couple of two-level apartments on the upper floors.
Each of the rooms has a place to eat, rest, sleep and wash, as well as a series of balconies that serve as the border between the living space and the lattice membrane that faces the outside.
This allows for spatial unfolding and natural thermal isolation.
All this causes a greater comfort inside due to the crossed ventilation offered by the design.































