
RonixOfficeBuilding
ARCHITECTS
Pargar Architecture And Design Studio
CLIENTS
Ronix Company
MANUFACTURERS
Autodesk, Kinetex, Robert Mcneel & Associates, Schuco, Trimble Navigation, Venus Glass, Vitor
MECHANICAL
Arash Mojabi
LEAD ARCHITECTS
Behzad Heidari, Shirin Samadian
DESIGN TEAM
Maryam Masnadi, Amirfazel Ghahremanpour, Hossein Karimi, Elnaz Ghafourian
ENGINEERING
Jalal-al-din Sajadian
CONSTRUCTION
Ali Rahiman, Ravesh Group
ENGINEERING
Jalal-al-din Sajadian
YEAR
2019
LOCATION
Tehran, Iran
CATEGORY
Office Buildings, Offices Interiors
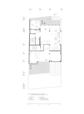
RONIX OFFICE BUILDING
The project was defined for Ronix Company on a 543sqm land with 60% occupancy in 6 office floors.
The project site has been selected in the proximity of Hafez Street to provide the necessary access to the area related to the company's activities.
Ronix is a growing manufacturer of industrial tools. Therefore, the elements related to the use and its nature led to the formation of the concept, which can be referred to as office-industrial, transparency, and dynamics of relations and the possibility of increasing manpower.
As a result, in the design process, transparent cubes were enclosed in the structure of the building, and with the movement of the cubes, the necessary green spaces for breathing and refining of the work were formed.
DRAWBACKS
1- The office nature of the building and the need for light on all facades have increased the level of glass area, which has the unwanted issue of radiation and negative greenhouse effects.
2- Adjoining context is worn and amorphous and does not provide a suitable external view.
3- The use of buildings nearby to the site is residential, and they are very close to the site, which creates the issue of overlooking and lack of privacy, which is in contradiction with the conditions of the office space.
SOLUTIONS
The above problems defined the need for semi-transparent glass through printing. Factors such as the design, size, and color of the print affected the comfort of staff and passers-by.
Therefore, the matrix network of printed points was considered, and current and future radiation spectrum filters were applied on it through grasshopper software to scale the matrix points and reach the ideal glass coverage.
Then, for visual comfort, a movement was applied to the points to get out of the matrix form, and by creating an organic design, minimize the effect on the viewers' concentration.

























