
House in Shimokawahara
ARCHITECT
Koizumisekkei
MANUFACTURERS
Grohe, Panasonic, Toto
PHOTOGRAPHER
Toshiyuki Yano
AREA
166 M²
YEAR
2013
LOCATION
Japan
CATEGORY
Houses
Text description provided by architect.
The project area had the Abe-kawa river bed and row of cherry blossom trees on the north side with the majestic Mt. Fuji in full view beyond that.
On the other hand, there was a three-story house adjacent to the south side, so it couldn't expect to get much sunlight.
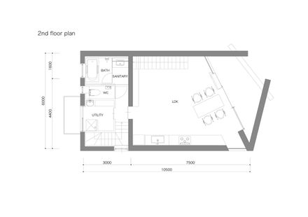
Under such conditions, we made a wide open wall like a door, and designed it to act as a frame for that beautiful scenery to the north and had connection with the outside.
In the living room on the second floor, sunlight from a skylight on the third floor shines on the wall that holds lightweight cantilevered stairs.
This sunlight reflects off the big wall and is designed to allow for the entire living room to be brightened with soft sunlight even without windows on the south side where the adjacent house is located.
The Japanese characters of the owner's name have the contrasting elements of the moon and the sun.
Therefore, we wanted to include contrasting elements into this architecture as well.
Thus, we have this beautiful, smooth, white wall on the inside against the rough, exposed, RC wall on the outside.
We also have a huge, formidable wall against the large open space of the living room.
These kinds of contrasts became a very important part of the design concept for the architecture.



















