3 D ARTIST
Étienne Dumas
JUNIOR ARCHITECTS
Marie-jeanne Allaire-côté
MANUFACTURERS
Forterra, Giguère Portes Et Fenêtres, Patio Fibrex, Peinture Sico, Vicwest
SENIOR ARCHITECTURAL DESIGNERS
Guillaume Fafard, Pierre Olivier B. Alarie
ENTREPENEUR
Construction St-pierre Roseberry
YEAR
2020
LOCATION
Quebec City, Canada
CATEGORY
Apartments
Text description provided by architect.
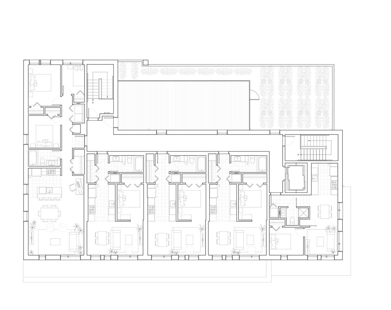
Built on a former taxi dispatch site in the Maizeret district, Hubert has 24 accessible or minimally adaptable rental units close to the Hôpital de l'Enfant-Jésus and the Chemin de la Canardière.
The building is located close to the streets to help better frame the urban fabric, allowing to hide the access to the underground parking at the back.
The basilar, on which the large red masonry balconies typical of the district are grafted, is activated by means of separate entrance vestibules, vegetated runners, and wide frames punctuating the main facade.
In order to lighten the volume and reduce its impact on the neighborhood, the top floors were covered with clear siding.


The building’s exterior envelope has been designed to be high-performance, resulting in substantial energy savings and increased comfort for occupants.
With energy efficiency and large windows, Hubert treats the openings more soberly to support the residential canvas of the sector.
The project is supported by CMHC’s National Housing Strategy’s Rental Construction Financing program.
This also involves offering six units adapted for people with reduced mobility as well as units at a lower price than the current market.
Energy efficiency is one of the strengths of this project, which has been distinguished by the use of triple glass, high-performance heat pumps, and the reduction of thermal bridges.
In addition, the optimization of the building's shape and the insulation (15% more efficient) are undoubtedly part of this category.

























