
Pennsylvania Farmhouse
ARCHITECTS
Cutler Anderson Architects
CONSTRUCTION SUPERVISOR
Frank Truncali
STRUCTURAL ENGINEER
Jerome Madden of Madden Baughman Engineering
LEAD ARCHITECTS
James Cutler, Meghan Griswold
MANUFACTURERS
Stuv, Thermador, Cardinal Lo-e, Reveal Designs
YEAR
2016
LOCATION
Lakewood, United States
CATEGORY
Houses
Text description provided by architect.
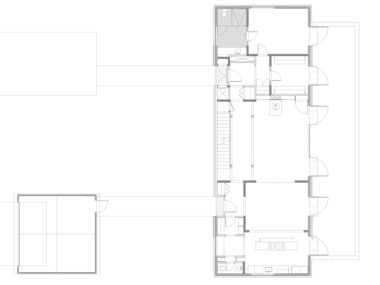
Located on a 250-acre family farm in northeastern Pennsylvania, this 4 bedroom residence was designed to function for a large family.
There was a strong desire to fit into the cultural context of Pennsylvania farming community, and the owners wanted to build a residence that was sustainable for the long term.
To that end, the architects attempted to design a building that from a distance appeared to be a typical Pennsylvania farmhouse ‘box’.
The building was designed with large rolling screens that cut 80% of the solar gain, while still allowing good day lighting.
Anecdotally, these have cut the summer interior temperatures by as much as 20 degrees F.
The heat source is a deep-well heat exchanger backed up with a wood-fired boiler that is fueled with ‘deadfall’ from the forest on the farm.
The building itself is highly insulated and the south-facing high-performance glass reduces radiant heat loss while allowing a substantive solar gain in the ‘low sun’ winter months.













