ARCHITECTS
Coy Yiontis Architects
LEAD ARCHITECTS
Rosa Coy, George Yiontis
LANDSCAPE ARCHITECT
Bellarine Landscaapes
STRUCTURAL ENGINEER
Greer Consulting Engineers
MANUFACTURERS
Caesarstone, Inlite, Neff, Qasair, Rms Marble, Reece, Vistosi, Acor, Centor, Mizu
BUILDER
J&S Trickey Builders
DESIGN TEAM
George Yiontis Rosa Coy Elodie Lim
BUILDING AREA (NO DECKING/NO GARAGE)
205 SQM
YEAR
2015
LOCATION
Barwon Heads, Australia
CATEGORY
Houses
Text description provided by architect.
Designed for an older couple who travel frequently, this coastal home accommodates visiting grandchildren and family as well as being a private, easily maintained haven between adventures.
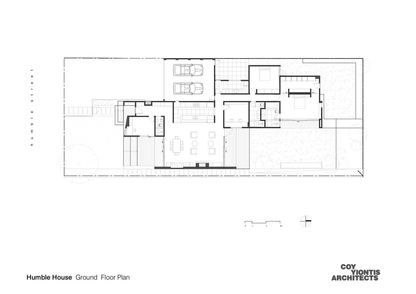
Building form was driven by site conditions and the need for accessibility; the resulting dynamic façade and dramatic internal volumes belie its liveability.
Screening from western neighbours and the need for the home to sit at a single level across a sloping site dictated the form of the building.
The overbearing nature of the two storey neighbour and threat of overshadowing and overlooking resulted in the design of a long, tall building form running the full length of the western boundary protecting the clients’ amenity.
Living spaces are oriented towards the north and cross ventilated. Bedrooms are oriented to the east to capture the morning sun.
Downsizing from a grand heritage country homestead, this new home is consciously contemporary. The clients revel in the ‘touch button technology’ throughout the home.
The standard mod-cons such as hydronic heating and electric blinds are relative luxuries after their old home where the stoking of daily fires was required to keep the house warm.
Also important are the small touches that aid day to day living; a bench seat at the front door for removing dirty boots; the outdoor shower for rinsing sandy feet after a beach visit
The secret hatch in the garage that accesses the internal kitchen pantry directly so that the heavy grocery bags don’t have to be lugged.
This home was to be that which their previous home was not; contemporary and easy to maintain. Consideration of the clients aging comfortably in place determined that there should be no steps in the home
Internal spaces and garden are at one continuous level and the resulting terraced garden at the rear of the sloping site provides ease of maintenance and an abundance of vegetables. The main living space features full height glazing to the north and south courtyards.
This can be opened out completely on either or both sides depending on weather conditions. Frequent entertainers, a flexible plan was required which allowed private studies to be converted to bedrooms when visitors stayed on.
An isolated study with its own bathroom has the potential to house a live-in carer should the need arise in the future. This is a contemporary home steeped in the history of its occupants and designed around their daily lives.
Comfort, ease of maintenance and facilitation of established daily rituals were primary elements of the clients’ brief. The home is fundamentally liveable and carefully considered with regard to the idiosyncrasies of the couple that live here.
Despite the contemporary response required to accommodate the functional brief, the family history is richly evident. We are reminded every time we speak to the client how wonderful the house is to live in.






















