Bellarine Hillside House
MANUFACTURERS
Beacon Lighting, Bluescope, Mondoluce, Muuto, National Tiles, Parisi, Reece, Studio Italia Design Lodes, Better Bricks Geelong, Bluestone, Cheminees Philippe Australia, Euro Clay, Ironbark, Kiitos Living, Lightly, Margaret Delahunty Spencer, Parisi Bathware, Relm Furniture, The Hive Ocean Grove, Urban Edge Ceramics
STRUCTURAL ENGINEER
Felicetti
PLANTING
Kerryn Godfrey
BUILDER
Construction 32
LANDSCAPE DESIGN
Tim Nicholas Landscape Architecture
JOINER
Scott Grayson
YEAR
2019
LOCATION
Wallington, Australia
CATEGORY
House
Text description provided by architect.
Located on the beautiful Bellarine Peninsula in Victoria, the Bellarine Hillside House by Freehand Projects is designed to engage with its natural Australian bush environment to create a sense of sheltered prospect.
Designed to feature the site’s endangered yellow box eucalyptus trees, the house’s distinctive form mimics the slope of the land.
Strong westerly breezes are directed up and over the facade, creating a calm, protected zone on its leeward-side. The house’s primary form is created by a series of exposed timber frames in a bold expression of structure.
It is partly inspired by ‘Taliesin West’, the house and studio built in Scottsdale Arizona by Frank Lloyd Wright in 1937.
A Goal To Entwine Lifestyle With Nature And Community Freehand Projects is known for creating thoughtful, relaxed architecture that sustainably integrates with the world around it. With the natural landscape as their design starting point.
Principal Architects Michael and Tamara Bell aim to integrate the environment and the public realm to create beautiful, life-enhancing spaces.
Tamara Bell says “At Freehand Projects, we always set out to create and mould spaces and materials in ways that open up new possibilities and improve the quality of life for our clients and the public.”
“Our backyard is the Bellarine Peninsula, and it certainly influences our work. We constantly draw on our coastal lifestyle, and we’re inspired by the simplicity of casual modernism. Our designs often reference the 1970’s design characteristics, while creating a relaxed, coastal feel.
A Challenging Landscape. The site of the Bellarine Hillside House is a target for strong westerly breezes, and the natural steep slope created challenges. It was also important to protect and incorporate the endangered yellow box eucalypts into the design.
The form of the house follows the slope of the land, encouraging the strong winds to blow up and over the house and provide a protected space where the northern sun can be enjoyed. The lower floor was created by partially digging into the slope to ground the house and ensure a secure foundation for the main level.
The natural landscape inspired the selection of exterior materials to complement the trees’ continuously changing ochres, greens, and pearlescent soft grey bark.
Laminated timber frames, ironbark cladding, and steel-framed glass symbiotically connect with the coastal environment to create a calm and harmonious composition.
Inside The Arizonian-Inspired Home Inspired by Taliesin West, the two-storey house was built to be both future-proof and contemporary for a retired couple.
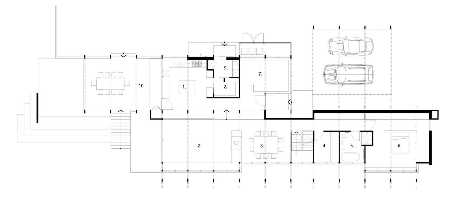
The entrance to the Bellarine Hillside House is located on the high side of the slope, nestled under the eucalypt canopy where the main living areas, kitchen, study, bathroom, and master bedroom all intertwine.
While the house mainly operates on the top level, a step downstairs reveals a cellar, spare bedrooms, and a storeroom to be explored. An open living area with luxurious ceiling-high windows draws natural light into space and opens up to the patio on the north side. Large concrete stadium-like steps form an edge to the lower western lawn and encourage family gatherings under incredible Lake Connewarre sunset views.
The northern patio is perfect for outdoor entertaining in the shaded afternoon sun. Lined with plywood to create a warm contrast to the off-white concrete masonry, the heart of the house interior includes a breakfast bar, sloped high ceilings, and an incredible cast-iron double-sided wood heater connecting the living and dining areas.
The Cheminees Philippe wood heater centre-piece has a raw and industrial look that creates a perfect contrast with its white-glazed brick base.
Freehand Projects addressed the difficulty of protecting endangered trees and working with a difficult steep slope by making them a feature of the design.
What has once considered significant challenges for construction became a central part of the house, blending a bold expression of structure with a comfortable living?



























