ARCHITECTS
John Wardle Architects
SWIMMING POOL DESIGN
Philip Johnson Landscapes
CIVIL ENGINEERING
4Site Engineers
GEOTECHNICAL ENGINEER
Macgregor Geotechnical
LANDSCAPE DESIGN
Grounded Gardens
TRADITIONAL CUSTODIANS OF THE LAND
Wurundjeri Woi-wurrung people
CONSTRUCTION TEAM
Arkit, Sinjen Group Prefabricator
STRUCTURAL ENGINEERING
4Site Engineers
BUILDING SERVICES ENGINEER
Umow Lai
PROJECT TEAM
John Wardle, Stefan Mee, Diego Bekinschtein, Ingrid Schreiber-France, Luca Vezzosi, Adrian Bonaventura, Elisabetta Zanella, Anastasia Doukakaros, Andrew Wong
YEAR
2021
LOCATION
Toorak, Australia
CATEGORY
Houses
Text description provided by architect.
A house that can generate, capture and provide everything it needs on site. A house that minimises its environmental impact beyond the site. This was our client’s ambition, while also creating a generous and delightful living environment.
An outer shell of Mt Gambier limestone is carved away to create several carefully orchestrated window apertures. Those on the street are aligned to achieve light but control privacy and solar ingress into the bedrooms.
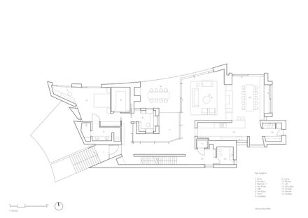
Larger openings on the north elevation allow for ingress of sun and sky views. The largest aperture is a central, shaded courtyard that draws in natural light, ventilation and the winter sun into the heart of the house.
The setting includes a planted pond in which sits a timber lined study. Everything is set around this calm and contemplative centre, but with views and links outward to a lush surrounding garden.
From the street, a broad sweeping stair leads to a steel portal that identifies the entry. Inside, the spaces are set around the courtyard. Natural light fills the house from various sources whilst remaining well shaded.
Living and dining, kitchen, powder room, main bedroom suite and two dedicated studies occupy the ground level. Guest bedrooms, bathrooms, and a roof-top kitchen garden are located above at first floor level.
A basement houses most of the building services equipment, a wine cellar, larder, music studio and cars. The garden has been sensitively landscaped with a strong emphasis on native planting.
Limestone is a natural material, locally sourced, and is very simply extracted from the quarry. Its production requires minimal energy expenditure.
The hand of the maker is in evidence as the stone is cut, sliced, laid and detailed, often to achieve inventive outcomes – a radiused plan, a cantilevered end, or an oblique opening.
Recycled timber cladding to the dining room pavilion and study will eventually weather to a silver grey. The appearance of the house will evolve, as the timber and stone accept a patina of weathering over time.
The interior of the house has a reductive, quiet material palette with a focus on details that accommodate the hand and eye. Siltstone floor tiles from Queensland complement limestone walls.
Recycled blackbutt from New South Wales is used for timber cladding and window frames. Reclaimed Tasmanian oak is crafted into flooring, interior linings and joinery.
Two complimentary and voluntary standards were implemented to reach the sustainability ambitions of the project.
Adopting Passivhaus principles achieved a comfortable living environment using minimal energy input by creating an incredibly high performing and uninterrupted building envelope.
Prefabrication of the thermal shell in a controlled factory environment helped to achieve quality control. Superior indoor air quality is attained using a 100% fresh air mechanical ventilation system with heat recovery.
In addition, the Living Building Challenge directed the selection of healthy, local materials and an off-grid approach to energy and water management.
As much a research project as design effort, to realise such ambitious sustainability goals required a highly collaborative effort from everyone involved.


















