MANUFACTURERS
AutoDesk, Flos, Grohe, Pianca, Carl Stahl (Germany), Garifoli (italy), Schuco, Trimble, Vetromoda
STRUCTURAL CONSULTANT
Continental Foundations
PLUMBING CONSULTANT
Behera & Associates
PANEL INSTALLATION
Reefs and streams
DESIGN TEAM
Sanchit Dhiman, Anusha sharma, Nancy Mittal, Abhimanyu Sharma
POOL CONSULTANT
CWG Pools India
AREA
796 m²
PLUMBING CONSULTANT
Behera & Associates
CATEGORY
Houses
LOCATION
Chandigarh, India
YEAR
2018
Text description provided by architect.
The House 1559/36D is 836 sqm residential project in one of the privileged locations of Chandigarh flanked with green belt on one side and a view to the Shivaliks, juxtapose against an urban landscape.
Our primary design response was to encourage the occupant of the space to be in a constant dialogue with either nature or art and sometimes with both.
In response to David Craib's quote "Design should never say, Look at me! It should always say, Look at this!” the most irrefutable thing was to raise the common leisure zone to the top of the house.
The terrace is morphed into an observation deck as it captures a snap of the hills. The canopy of trees from the green belt gives an illusion of an infinite green to the terrace garden.
It is this introduction of raw greens that makes the swimming pool sensual and it becomes a part of something more than a physical activity.
The way design responds to nature is sometimes almost too literal like the stone laying around the existing mango trees and at other times it is in the form of art left to the imagination of the occupant.
There is a construction sincerity that prevails as levels interplay with each other to balance the depth of the pool with terrace level. The interiors follow the same logic of purity.
A thoughtful experiential sequence in the below floors, meanders one through the living spaces on the ground.
Ones existentially is felt by the translucent partitions. It aids as a visual invitation to spaces above and beyond you. Nature almost always sees you naked through the large glass doors and windows.
Elements like a carved courtyard, glass bricks, louvers, pergolas, and other openings catalyze dialogue between the observer and observed via the play of light, shade, ventilation and the colors of nature.
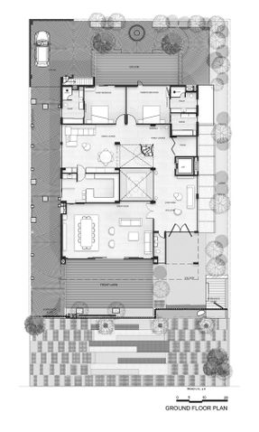
The ground floor plan is a drama between three zones. It grades from public space like the great room and living area ambiguously interlocked with semi-private areas of the kitchen, dining lounge and family lounge that finally meets the private bedrooms at the rear end.
The first floor is a Lego arrangement of three bedrooms each having its own private terrace. The spatial quality of these terraces is unique to one another.
The master bedroom is intentionally a trapezoidal plan to re-orient the room for best vista and re-emphasize the importance of bio-philia.
The bed is placed in the center to allow for a free flow of energy along borders but more than that it gives an ode to the wall that makes a room.
At some parts, flooring of most everyday spaces - the bedroom and the terrace merges, blurring the boundaries between what is inside and what we consider outside.
At parts, existentially is further exaggerated by mirror mosaic tiles on ceilings, in chandeliers or at times as wall-art where the reflection of you becomes nature.
The observer becomes the subject of their own observation. It is an attempt to redefine nature which leaves the occupant cognizant of his/her own presence.





































