Sharana Daycare Center
DESIGN TEAM
Anupama Kundoo Architects
CATEGORY
Educational Architecture, Day Care
LOCATION
Puducherry, India
AREA
766 m²
YEAR
2019
Text description provided by architect.
Sharana is a social and development organization established to address the critical educational needs of socioeconomically disadvantaged children and communities in urban Pondicherry and its surrounding villages.
Sharana’s foundational belief is that all human beings are equal in rights and dignity, and everyone is entitled to food, clothing and shelter.
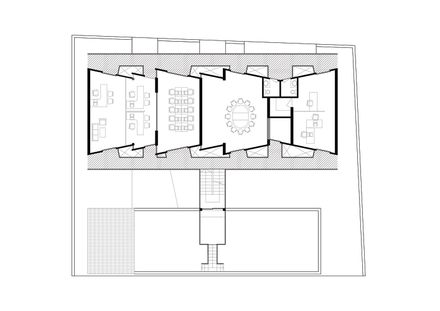
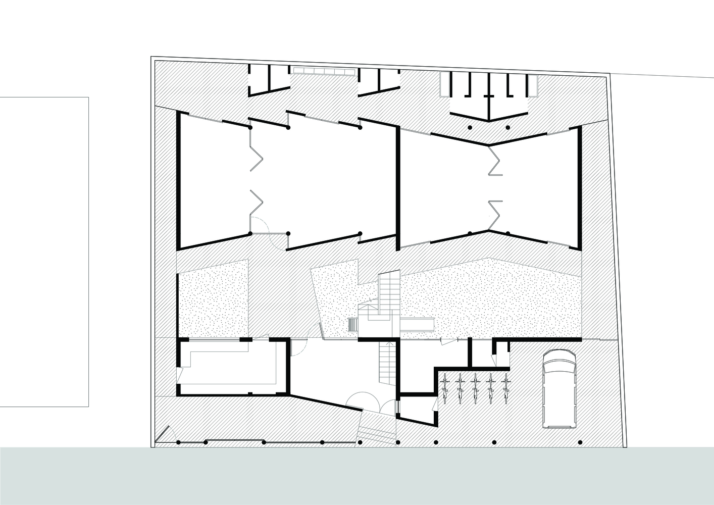
The architecture revolves around the central strip of an inner garden court with large multipurpose activity spaces at the rear of the site, and reception/ administration services at the front on the street.
The building is constructed as reinforced cement concrete slabs on columns of the same material.
To enclose the various spaces economically, walls are made of porous terracotta screen modules that can be quickly erected and eliminate the need for windows and frames while allowing ventilation throughout the wall surface, economically achieving the required conditions for climatic comfort in the tropical context.
These screen wall elements allow transparency from the floor upwards, allowing small children to remain in visual contact with the garden outdoors.
The porous elements express transparency and inclusiveness as per the aims of the institute, and in practice require no additional finishes like plasters and paint as in regular masonry, while also minimizing maintenance.
In order to give the activity rooms their own identity and sense of enclosure, and to break the monotony of long corridors, the geometry of angular walls as composition elements is the ordering principle.
This feature gives the corridor and entrance areas a sense of enclosure, identity and a sense of intimacy appropriate to the scale of small children, and helps them with orientation within the complex, completely deconstructing the impression of long monotonous corridors.




















