ARCHITECTS
SAKUMAESHIMA
MANUFACTURERS
IOC, Lonseal Corporation, Nagoya Mosaic-Tile
LOCATION
Yamanashi, Japan
YEAR
2021
CATEGORY
Houses
Text description provided by architect.
The site is located in the northern part of Yamanashi City, Yamanashi Prefecture, surrounded by vineyards, with a panoramic view of the Kofu Basin and Mt.Fuji.
This architecture is located in a corner of the site with a total area of 920m2, consisting of 470m2 of area for building and 450m2 of area for the vineyard. This is a two-storied wooden building with a total floor area of 123m2 and a building area of 92m2.
The owner is a family of four, a couple aged 30 and two children aged 3 and 1. After the construction, the building was handed over to the family, and their life began.
This architecture is a vessel that can be changeable as the family grows. The building was planned to be able to develop around a flexible configuration.
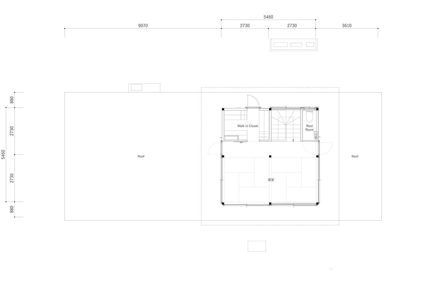
The floor plan is based on a grid of 2,730mm, and the entire structure is made up of wooden columns and beams.
As the life cycle of the family changes, the configuration of rooms and the location of objects can be changed. This grid allows for the renewal of walls and fittings.
Although this is common in traditional Japanese architecture, I think that this structure is very suitable for the changes and speed of modern life. The shape of the building and the design of the exterior is designed to be simple, without forgetting the fact that the main actors are the families living there.
The design of the building's shape and exterior is simple, keeping in mind that it is the family that lives there that plays the main role, and valuing the flow of life that takes place there.























