Rigot Collective Dwelling Centre
ARCHITECTS
Acau Architecture
CLIENT
Hospice Général – Service Immobilier, 1227 Les Acacias
CHÊNE
Burgat Saint Aubin, Corbat, Burgat Saint Aubin
SAWMILL COMPANIES
Epicéa, Despond Sa Bulle, Zahnd Sa Rueyres, Epicéa
PHOTOGRAPHS
Marcel Kultscher, Enric Rovira Ferrer
CIVIL ENGINEER
T-ingénierie Sa, Geneva
MANUFACTURERS
Autodesk, Hunter Douglas Architectural (Europe), Arquivo Contemporâneo, Bontempo Brasília, Carminati Tapetes, Danilo Vale, Deca, Decortiles, Divino Galeria, Docol, Estilo Em Pedras, Hunter Douglas, Líder Interiores, Sallva
CONSTRUCTION MANAGEMENT
Entreprise Générale Sa, Jpf Construction Sa, 1630 Bulle
CIVIL EXECUTION ENGINEER
Thomas Jundt Sa, Geneva
DESIGN TEAM
Antoine Dellenbach, Darius Golchan, Enric Rovira Ferrer, Liliana Franco Teixeira
EXECUTION ARCHITECT
Pasquier Glasson Sa, Bulle
CONCEPTION INCENDIE
Bois Initial Sa, 1110 Morges
FRAMEWORK COMPANIES
Jpf-ducret (Vd, Fr), Dasta (Ge), Casaï (Ge)
FRAMEWORK COMPANIES
1258 Perly-certoux, Charpente Concept Sa
WOOD LABEL
Cobs, Cobs, Plafonds Et Ossatures, Ainsi Que Pour Le Chêne Des Revêtements De Façade Et Coursives)
CIVIL EXECUTION ENGINEER
Thomas Jundt Sa, Geneva
FIRE SAFETY ENGINEER
Charpente Concept Sa, 1258 Perly-certoux
WOOD EXECUTION ENGINEER
Jpf-ducret Sa, 1400 Yverdon-les-bains
WOOD EXECUTION ENGINEER
Jpf-ducret Sa, 1400 Yverdon-les-bains
AREA
7070 m²
LOCATION
Genève, SWITZERLAND
CATEGORY
Apartment
YEAR
2019
Text description provided by architect.
The project is located in the Rigot park in Geneva, alongside the Avenue de France, near the Sismondi school. The choice for the location in the park was impulsed by an urgent and temporary measure aiming at accommodating 370 migrants.
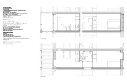
The project consists of two symmetrical buildings of 5 levels made of 230 prefabricated wooden modules. The dwellings are accessed by an external gallery open to a public courtyard, which connects to the Sismondi streetcar stop to the Rigot park.
Through its constructive mode, the project aims to limit its environmental impact at various scales. The buildings are bound to be relocated within ten years and the site returned to its original state. Anticipating the rehabilitation of the site and the recycling of the materials upon removal, the foundations are made of wood and can be reused on the next building location.
The crafting of the foundation through a network of piles and wooden footings reduces the project's impact on its natural ground. This totally “dry” construction avoids any contamination of the surface water network during construction and frees the process of the burden of recycling concrete in the dismantling phase of the project.
The project anticipates the specificity of a population that is not always the mirror of the typical couple with two kids. To respond to the waxing and waning of the demand, the project proposes evolving apartment typologies. The modular system allows the housing units to vary from 2 to 8 rooms through a play of fires doors or conversion of kitchen spaces to the bedroom.
The modularity of the apartments and their subdivisions also allows them to consider alternatives uses such as hotels industry or student housing. The set of the composition of the prefabricated modules will enable the creation of buildings with different volumetry for its future(s) reconstruction(s).
The prefabrication and delivery of the finished modules were decisive for the construction site planning. This organization which plans three worksites in parallel (foundations/prefabrication of modules/assembly and finishing) allows the project to be carried out in a short period of time.
The use of wood from Geneva’s forests for the foundations and the building envelope was imposed since the start of the project, which led to a process that involved the local timber manufactures, resulting in a reduction of “grey energy”.
The quantity of wood that was used for the project is estimated at 3200 m³ of certified “Label Bois Suisse” wood (formerly COBS), with the exception of the larch window frames that consolidate the façade.
The search of a character that expresses the wooden structure makes a statement about rational aesthetics as the essence of the project.
Starting from the supply of a single dimension of raw sawn boards, the composition of the façade and the execution of a part of the exterior installations are based on this positive constraint. For the façade, the construction element is declined in two details for the railings and cladding.























