LOCATION
Gières, FranceGières, France
CATEGORY
Research Center, University
YEAR
2012
Text description provided by the architects.
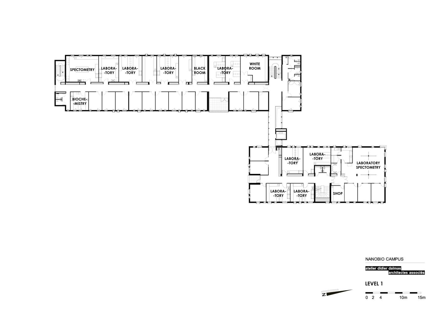
The project is a university building dedicated to teachers. Its characteristic is the research in nanobiotechnology. It develops on 4 levels.
Level 0: reception, cafeteria and conference space
2 levels are dedicated to the research: laboratories, offices and meeting room
1 technical level.
The building consists of 36 laboratories of different types; physic-chemistry, functionalization, synthesis, instrumentation.
THEY HAVE THE PARTICULARITY OF
a mass spectrometry plate
a specific vibration management tray
The laboratories are all air-conditioned and receive specific equipment.
They consist mainly of wet and dry benches, fume cupboards, ventilated cabinets, specific storage under the benches. In addition, they also have analytical gas supplies: argon, helium, compressed air, etc…
34 offices + 4 meeting rooms + 1 conference room (80 square meters) spread over all 3 levels.



















