CATEGORY
Houses
YEAR
2013
LOCATION
Bruges, Belgium
Text description provided by the architects.
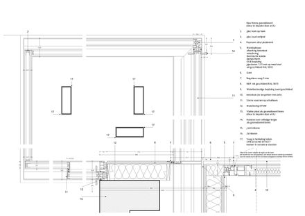
The project brings together a walled courtyard and a swimming pool. The living area is a glass box contained within a concrete garden pavilion.
By making the poolhouse entirely out of glass, with minimal framed windows, both inside and outside seems to disappear.
The overall atmosphere is a combination of rough and soft materials creating an intense, silent luxury the length of the pool allows you to experience swimming in a garden, under a building and in a building.
The garden (designed by Alderik Heirman) is gently entering the building and results in a perfect marriage of nature and architecture.

T +61 2 93101555
Lacoste + Stevenson
69 Reservoir St, Surry Hills NSW 2010, Australia
































