
RBC Design Center
DESIGN ARCHITECTS
Fluides Building Services: Alto
PHOTOGRAPH
Erick Saillet
SYNTHESE
C&G, Stéphane Goavec
ASSOCIATED ARCHITECTS
C+d Architecture, Nicolas Cregut, Laurent Dupor
OPC
Arteba, Gilles Gal
LIGHTING DESIGN
Aik, Yann Kersale
LIGHTING DESIG
Aik, Yann Kersale
COST CONSULTANT
Jean-marie Baudouï, Beta-concept
DESIGN
Fluides Building Services: Alto
YEAR
2012
CATEGORY
Store
LOCATION
Montpellier, France
Text description provided by architect.
A design life style. This is the theme of the RBC Design Center, distributor of contemporary furniture whose headquarters are based in Gallargues-le-Montueux (Gard).
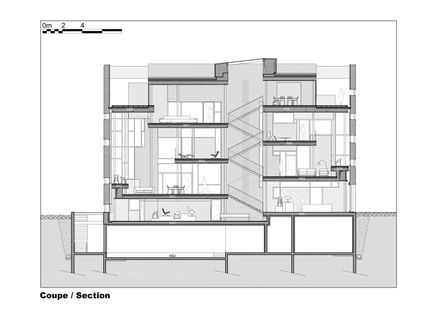
Located in Montpellier in the completely restructured district of ZAC Marianne, this project is a 18 meters high parralelepiped of 2 000 sq meters.
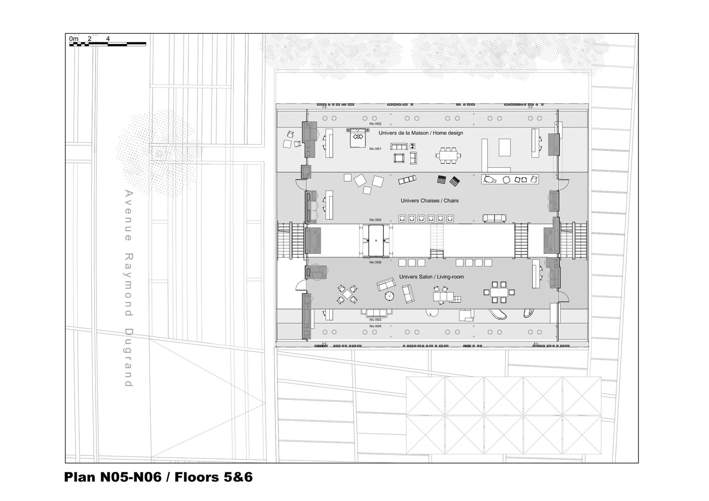
The building, designed by Jean Nouvel, has nine suspended levels organized around a showroom.
kitchen, outdoor furniture, an architecture and design bookstore, a shop devoted to the object and a restaurant.
On site, ligthing detailed studies are provided by a light-designer from the drawings supplied by customers. The RBC Design Center was inaugurated in June 2012.


















