The House of Lei Tao
MANUFACTURERS
天梭电梯Translift, 鼎层DCENG
CONSTRUCTION
Changwei Sheng Team
ARCHITECT IN CHARGE
Lei Tao
DESIGN TEAM
Lei Tao, Zhen Chen, Jing Li, Jinghong Zhang
LOCATION
Beijing, China
CATEGORY
Houses, Renovation
YEAR
2017
Text description provided by architect.
OWN HOUSE OF ARCHITECT
It is an intervention project of a detached house. This house is located in a residential area which is filled with the similar type houses. This house has three floors: underground, ground and first floor. Besides the rooms for living, two studios for architectural and artistic creations are also placed in it.
The intention to recreate this house is to isolate it from the other ones and help the owners to generate the stability and liberty for their mental world. In this project, the material application of wood and metal also contributes to creating the relationship between the architecture and nature truthfully.
At the same time, the high unity between architectural functionality and comfortableness is also the design pursuit in this project.
THE ENCLOSURE
Covering the site and the original building with a gigantic enclosure is another design strategy. The enclosure blurs the boundary between the building and courtyard, interior and exterior,trying to mix all into one, even the trees and natural light,meanwhile maintaining their unique and self-contained characteristics.
In this case, the space also produces a series of change: from interior to exterior, underground to ground, a primitive base to a number of yards, the original flat base to a combination of multi-dimensional space what makes the life mode more diverse and more specific.
THE INDEPENDENT WORLD
Space is free to stretch as an abstracted landscape in this independent world. Artistic conceptions of Chinese landscape are interpreted by geometric space, from bottom to top, from left to right, free to wander, even being converted among different situations.
During the walk, you can maximally perceive of the liberty and extension which are brought by the new added building. Here, the building has no constraints at all, only to expand the possibility of life, to achieve a state which is freer and more outstretched than the open space before reform.
A multi-dimensional place is created in this continuous space. Gray space, between the indoor and outdoor space, gives the place characteristics of multiple levels and a wealth of rolling space. Because of the rolling space and the control of light and shadow, the residential space is able to be separated and linked at the same time in order to switch among varieties of space fragments and somehow to make daily life more dramatic. Human life has lots of uncertainties, and therefore it is rich and colorful.
The independent world is not equal to the isolated world, not even the lonely world. Only if the world is rich in content and has self-system that can possibly be independent from the outside world. In this case, the peace of the inner heart could be obtained.
UNITY OF INTERNAL AND EXTERNAL
Constructing is neither simply creating an internal space, nor blindly building an external structure, but creating a place which is rich of essence between the inside and outside.
The original floors, walls, roofs and external structures are aligned as much as possible to maintain the continuity from inside to outside except a layer of glass for heat blocking. The pursuit of the unity aims to introduce the existence of nature directly so that the natural light and scenery can extend to interior space without any obstacle. All the space in the house is symbiotic with nature, and changing with seasons, including the indoor colors. Therefore, in addition to the compulsory functions and materials,the interior space needs no extra decoration. The so-called residence is nothing but a refuge for people in the natural environment which should not lose the most direct link to nature.
Here, the huge "cover" will mix all together: natural and artificial environment become blurred, deriving new realms, thus beyond the natural. Then the building is no longer a device which separates people from nature, but a junction of the two.
EXPLORE THE SIZE OF BORDER
The so called boundary here refers to the level of space comfortableness. In the whole building, there exist a series of heights,such as 2.3, 2.2 or even 2.1 meters, but also walking width of 0.7 meters.
These dimensions are almost the boundaries of space oppression, but bring the greatest perception of the building;the building is almost accessible at your fingertips and maximally fit the body and exist. Just like the way of pursuing better-fitting clothes brings you a specific intimacy, so that you can be peaceful and relaxed. Architecture within reach can make people feel the realism of the material world, and this perception can make people trust the building’s care for people is real.
BIG IN SMALL
Blur the beginning and the end, create the infinite sense of continuous space, produce infinite possibilities in a limited area. These design methods,similar to the traditional garden making, are always unable to distinguish the boundaries between architecture and landscape because of the inseparable space.
From the ground to the air, from the vestibule to the back room, a complete set of space system is formed. This kind of third space formed by a huge "building cover" ,together with the original building,divide the courtyard into various "sub-courtyards", and each "sub-courtyard" has its own system.
They are all connected to their respective interior space; some sink into the ground below and echo with the basement space, forming a unique spatial characteristic. One courtyard is a world, silent but powerful.
CONTINUITY AND CONVERSION OF REALM
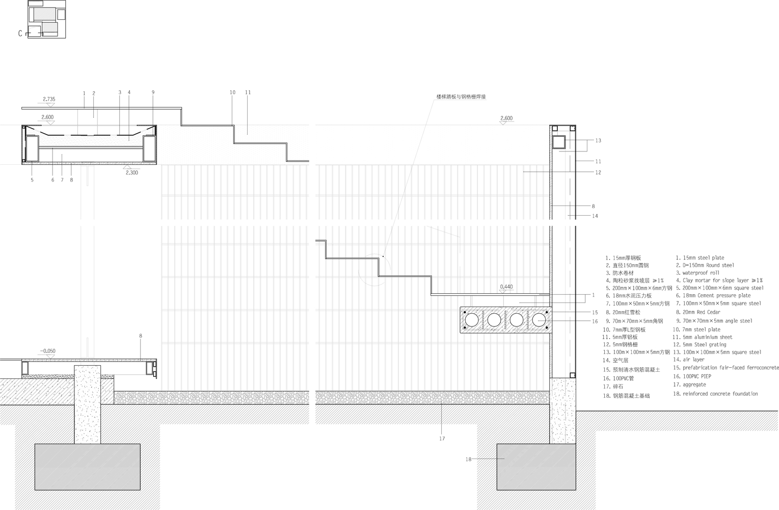
Because of the needs of the site and the function, the house is designed into various spaces of different sizes. Although these spaces have their own independence, they are not isolated. Prefabricated concrete slabs, the staircase folded out of steel plates and bifurcated steel ramps are tightly connected together and form a continuous path.
This 70cm-wide path is accurate and lightweight; the staircase formed by the steel plate is so light as origami. There is no waste of structure, and wherever it goes is so refined.
Some crossing the sunken courtyard, some suspending on surface of water,some twining around the trees, some embedded into the building, and some climbing at the edge of the massing, which create an adaptable path. Walking through the atmosphere in different situations with the scene changing at every step,the joy brought from it is rich and specific.
The constant conversion among different realm has always brought a fresh experience, as the dramatic of film scene switching. While tightly wrapping together with the nature, the body has already been a part of the nature objectively.
AUTHENTICITY OF MATERIAL
The basic materials of the building are solid wood and aluminum panels. The outer layer is corrosion-resistant aluminum panels, as the basic protection of the building,like an outwear; the inner layer is red cedar wood, more like a lining of clothes, more moderate and more comfortable.
This decision is not arbitrary, but relate to the place people stay, to make the body get along better with the place. Wood is a continuation of nature, warm in physical properties, and easy to be close. While aluminum is the opposite, thin and cold in physical properties, and more resistant to external attacks.
When the two being imposed together after the hollow processing, another new kind of thickness and richness of space comes into being. The semi-translucent effect makes this independent world maintain a certain contact with the outside.
In some parts of the building, fair-faced concrete slabs and steel plates intersperse in the building space, which directly express the essence of the materials. These materials which can be perceived by hand express the richness of the building. As a part of materials, these natural things, trees, rocks and the infinite pool in the courtyard, are also integrated into a portion of the building.
ORDINARINESS OF ARCHITECTURE
Life is changing and complex, and the function of architecture is also changing and complex accordingly, and even obscure.
The relation between function and emotion is also obscure. The need for emotion exists everywhere, from eating,sleeping and working to relaxing and dazing.
They all require better atmosphere. it is difficult to distinguish functional needs from emotional needs, so "comfort" has become the largest appeal of architecture. These demands are ordinary incidents of daily life. Architecture has always been trying to make life more convenient and more casual, and thus feel the existence of self.
"Comfort" does not necessarily affect the innovation, instead becomes the source of new "concept". Look for and image the poetic living, create the elegance of comfort, and establish a new order and way of life in the daily life. The "new" architecture is not derived from the forms and concepts that are isolated from the world.
It is not unconventional, but is closely related to the concrete way of life formed by the time. The so-called "tradition" of architecture is not an unchangeable old mood or rule, not the exterior form of the building, but the nature of natural reaction, the multiyear unique natural view and living emotions, which exists only in the depths of emotion. Today's housing concerns about daily life only.




























