PROJECT TEAM
Supachai Khiewngam, Thitaya Tansirisernkul
INTERIOR DESIGN
Somdoon Architects
LANDSCAPE ARCHITECT
Shma Company Limited
PHOTOGRAPHS
Ketsiree Wongwan, Charnon Sarachart
PROJECT DIRECTOR
Punpong Wiwatkul
AREA
800 m²
YEAR
2016
LOCATION
Don Kaeo, Thailand
CATEGORY
Library, Community Center, Offices
Text description provided by architect.
ASA Lanna Center is located on a highway in Chiang Mai, Northern province of Thailand. As a branch office of Association of Siamese Architects (ASA), the design aims to find the balance between keeping the local culture identity while accommodating requirements of today.
Chiang Mai was a capital of an independent kingdom, named Lanna, and it means a million of rice fields.
The image of rice field with a simple Lanna-style pavilion is created on the rooftop of the building. While the room requirements such as office, library and multi-purpose room were tugged underneath.
The rooms were arranged according to their volumes from low to high, from front to back. The arrangement creates the stepping rice field landform leading to the pavilion on the top.
The plants around the building are local which can be found in rice filed landscape such as local palms, banana and bamboo.
At the main entrance, a symbolic tree of the province, called Thongkwaw, will flower in orange to welcome visitor on cool season.
The main entrance is on the side lane and carved into the landform building creating the quite entrance space away from the highway.
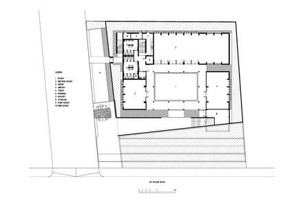
When entering to the center of the building, you will find a courtyard that connecting the ground floor and the roof space.
The Pavilion which is the focal point of the building can also be seen through the courtyard to ensure the sense of unity.
Apart from bringing down natural light to the rooms on ground floor, the courtyard is also a flexible space for a different kind of events organized by ASA members and also be an extension of the multipurpose room if it is required.
A small café space was placed on the roof before the top level, and it has a separated entrance which can be used during the weekend when the main entrance and the office are closed.
On top level, a timber structure pavilion in Lanna-style is located. Its proportion and details were advised by local veterans and builder.
People can enjoy the rooftop space from the pavilion with the view of Doi Suthep, the sacred mountain of Chiang Mai.
The materials and finishes of the building were selected to express the natural texture and locally produced such as laterite, and red brick. While all the roof top planter parapets are cast-in situ concrete with bamboo form-work to reduce hardness feel of the surface.
Passing by the building, the stepping rice field landscape with Lanna-style pavilion will keep reminding us of the spirit of Lanna. Eventually it could be an example to inspire others for the way of developing the city.

























