CATEGORY
Houses
LOCATION
Mechelen, Belgium
AREA
172 m²
Text description provided by architect.
Architecture has an influence on nature, and nature has an influence on our architecture. Art also influences our architecture.
A sculpture forms the basis of this residential volume. In our quest for buildability, affordability, circular, energetic, and economic efficiency, we allow ourselves to be guided by geometric abstraction.
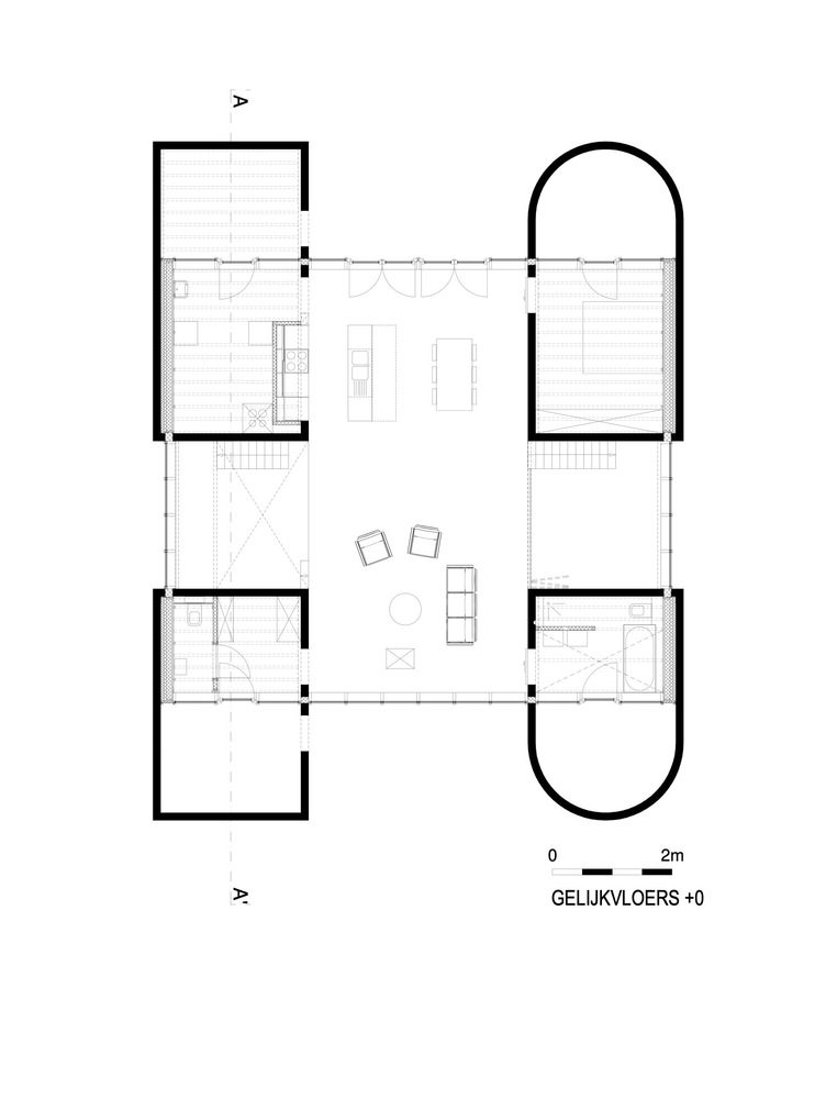
The wooden structure of the insulated volume perforates with surgical precision these massive volumes, creating an alternation of enclosed and open outdoor spaces.
The brick volumes carry the solid concrete roof between the volumes, in the brick volumes the wall, floor, and roof are made of wood.
The hybrid way of building uses each material with its specific qualities and ensures a high-performance way of building.
In addition to the performance, the hybrid permanent structure ensures different experiences, atmospheres, sounds.
The brick volumes include the private and serving functional spaces such as the sleeping quarters, yoga room, bathroom, storage room, and entrance.
The space between the volumes is open and equally oriented to each side, no front, side, or rear sides but rather east, south, west, and north.
Intermediate spaces are created inside and outside, but all open in relation to the environment.
It has the potential to apply secondary structures, allowing it to respond to changes in the program.

















































