Whidbey Artists' Retreat
ARCHITECTS
Prentiss + Balance + Wickline Architects
LOCATION
Island County, United States
MANUFACTURERS
AEP Span, Formica, Caesarstone, Fisher & Paykel, James Hardie, Jeld-Wen, KitchenAid, Kohler, Liebherr, Majestic, Vent-a-Hood, Crystalite, Escenium HAUS, Seven Wall, Zometek
Text description provided by architect.
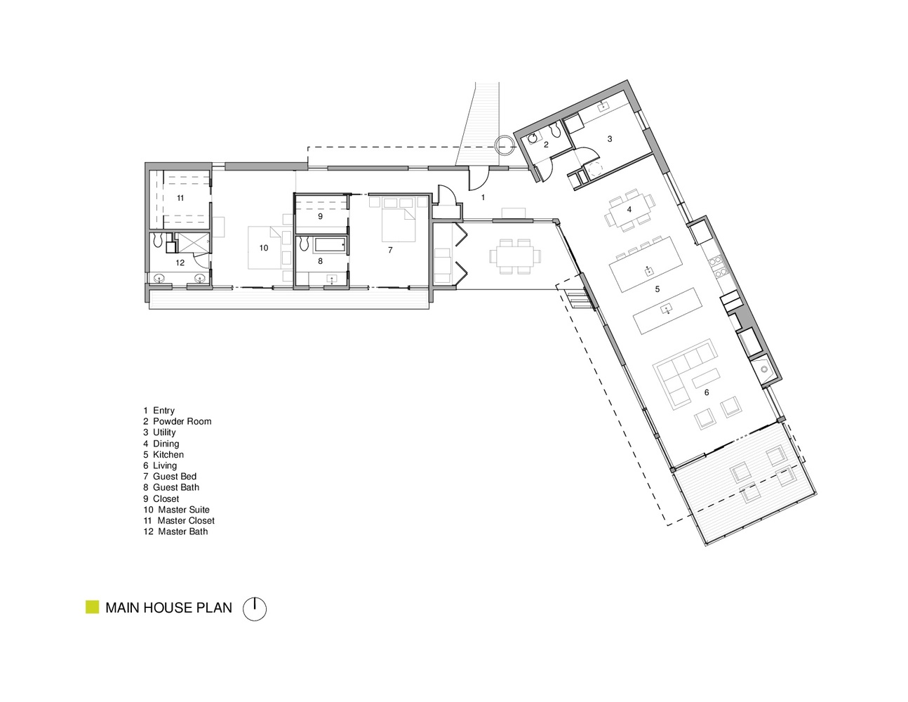
Nestled into a second growth cedar forest on a 10 acre Whidbey Island parcel, this project consists of two artist’s studios, a house and a garage.
These buildings are carefully arrayed around the site’s high point, each focused outward toward a distinct view of the adjacent cedars, gullies and small meadow.
The buildings are expressed as industrial objects within the landscape, eschewing the idea of ‘blending’ with the surroundings and, instead, striving for a harmonious composition of elements in the forest - an arrangment encouraged by the adventurous aesthetic of the artist clients.
A neutral material palette of concrete, galvanized metal and polycarbonate is punctuated by moments of saturated color.
The warm spectrum of colors was chosen with the clients on-site to compliment the cool palette of the surrounding woods and other exterior materials.
Double sloped roofs cap simple rectangular volumes, creating dynamic forms that respond to topography and light.
Clerestories of polycarbonate panels fill the volume left by the elevated roof edge, admitting diffused light and obscuring the landscape into an artistic abstraction.
The double slope roof is applied uniformly to the primary spaces yet the orientation varies to enhance the program of the associated space.
Concrete floors, white walls and warm wood tones provide a quiet and light filled interior, with art and furniture providing splashes of color.
The entry is located at the intersection of two rectangular volumes, delineating the public and private spaces.
The studios mix fine detailing with an industrial aesthetic, as LVLs and pipe railings trace the edges of the lofted office space and exposed TJI’s sit on crisp, white walls.
Long gallery walls provide space to hang the work, while the double height space, polycarbonate clerestory and skylights create an expansive space filled with natural light.




















