
Yangsan SOSOSEOWON
ARCHITECTS
JYA-RCHITECTS
ARCHITECT IN CHARGE
Youmin Won
MANUFACTURERS
AutoDesk, Hanyang Tile, Namsun Aluminum, Trimble Navigation
PHOTOGRAPHS
Youmin Won
DESIGN TEAM
JYA-RCHITECTS
LOCATION
Yangsan, South Korea
YEAR
2018
CATEGORY
Coffee Shop, Mixed Use Architecture, Houses
Text description provided by the architects.
The owner of the building has long sought to restore sense of community in the area of the village and the region, using coffee as a medium.
A long time before the construction was planned, the owner ran a cafe, used it as an ‘open bookstore’, a study room for local children and various lectures and small performances.
And at some point, the owner wanted to expand these activities to be more stable, more active, and more diverse, and we planned to build them.
So what we've been thinking about since we started designing was what public spaces, which have long been imbued in our culture and emotions, are most familiar to us, so that we can work in the region and in our daily lives without having to learn.
I thought that public spaces that work in the daily lives of villagers should have no qualms about going without purpose and reason.
And in that space, I thought that the activities should be free, and flexible enough to contain the activities of the village, large and small.
Just as the road space in our village was irregular but free, moving, meeting, gathering, exchanging, etc., this space wanted to have that kind of character.
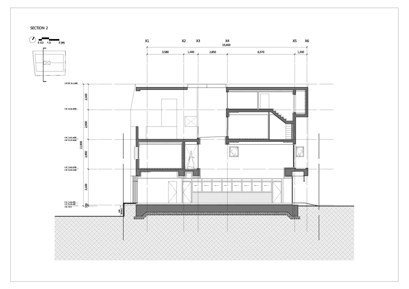
The plan first began with the creation of a three-floor total volume. The village cafe to be run by the owner of the building is on the first floor, the second floor is a rental house where various members of society can live together, and the third floor is a space for the owner’s family to live.
After filling up the volume like this, we worked on emptying the space. We emptied the first floor and connected it to the road, then emptied the open space that stretched from the first to the third floor, creating a ‘void space’ that stretched vertically to the sky.
These emptied spaces are not filled and not functionally set spaces, just emptied. So spaces where people can meet, communicate, and do anything together physically and visually.
Thus, the cafe on the first floor has become a space like a single extended road that naturally connects with the road, and there is a void space where you can see the sky through the second and third floors and the roof.
Through this space, you can see the sunlight coming in through the sky, the clouds moving, and the rain coming in through the sky.
When you open the window, you can smell the coffee made by the cafe downstairs. The architect living on the third floor can see the surrounding landscape outside and drink tea inside the cafe downstairs.
Although they are different programs, they communicate and connect with each other through these empty spaces and various senses.
After the building is completed, the owner has been working with local artists, activists, social workers and, above all, local residents to engage in more diverse exchanges and activities than ever before.
And as a basis, this space is insufficient but used for various functions. The space is unadorned by the resemblance of the owner.
Through the most essential and fundamental forms and materials, we tried to capture the image of the owner.
I hope that it will remain as an architecture that will never be done to the owner who is always worried about his right thoughts and appearance.





































