
Office Building Jolimont
ARCHITECTS
2b Architects
STRUCTURAL ENGINEER
3demarch, Stève Porscha
BUILDING ENVELOPE ENGINEER
Neuchâtel, Bcs
CLIENT
Promo T&I
CONSTRUCTION MANAGEMENT
A.planir
BUILDING PHYSICIST
Normal Office, Peter Braun
MANUFACTURERS
Agc, Fluora, Neuco, Tulux, Tisca, Tisca Tiara
AREA
1322 m²
PHOTOGRAPHS
Roger Frei, Zürich
TEAM 2 B
Stephanie Bender, Philippe Béboux, Céline Becker, Steffan Heath, Patrick Krecl, Tanguy Auffret-Postel, Caroline Jung
LOCATION
Mont-sur-rolle, Switzerland
YEAR
2014
CATEGORY
Institutional Buildings
Text description provided by the architects.
Office building in Jolimont, Mont-sur-Rolle.
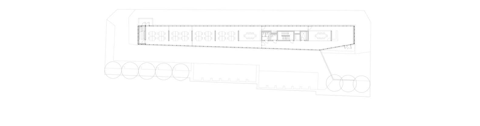
Located on a very narrow leftover plot lying between the A1 motorway and a high-voltage line, the project uses these constraints to develop a unique morphology: a long narrow building which takes advantage of the maximum construction potential and provides sound protection to the residential neighborhood located below.
Its half-buried design complies with the authorized size, while offering two differentiated access types to the building: customer access from the street level and staff access below, from the lower level.
The structure is formed of concrete walls arranged transversely behind the main façade, its serial nature playing with the length of the building. It caters to both commercial and skilled-trade purposes, offering an open and continuous space while leaving the possibility of compartmentalizing into subspaces according to future needs.
The central core of the building, which contains services and infrastructure for vertical connections, connects the head of the building, the presentation space, with the administrative and skilled-trade areas.
The façade homogeneously wraps around the entire building in shades of ocher-golden hues, using alternating silk-screened opaque and transparent glass panels, according to room purposes and orientations.
This alternation is carried out with three different qualities of glass (clear, solar, smoked), such that in the end, six different shades are applied over the entire building's façades.
At night, the alternating opaque and transparent glass panels present another motif which allows the inside of the building and its main space partitions to be visible.
During the day, the subtle color variation offers multiple perceptions, depending on the light and season.
The alternating ocher-golden shades of the windows recall autumn vine colours, mixing the reflection of the surrounding vineyard landscape on the façades of the building, presenting a constantly evolving pixelated and colourful image of its context.






















