ARCHITECTS
Loci Architecture + Design
LEAD ARCHITECTS
Roger Doyle, Hamad Khoory
MANUFACTURERS
AutoDesk, ORAMA, Siematic, CEA Design, Casabella, Trimble
MEP ENGINEER
Consistent Engineering Consultants
DESIGN TEAM
Sham Enbashi, Michael Paulo Cruz
STRUCTURAL ENGINEER
Al Saraya Engineering
COST CONSULTANT
NEA
LOCATION
Dubai, United Arab Emirates
CATEGORY
Houses
Text description provided by architect.
The paradigm of the traditional Arabic courtyard is explored in the concept for this private villa in Dubai, where climate and context ensure the courtyard plays a vital role, modulating internal private space, evoking the memory of ancient Arabic architecture.
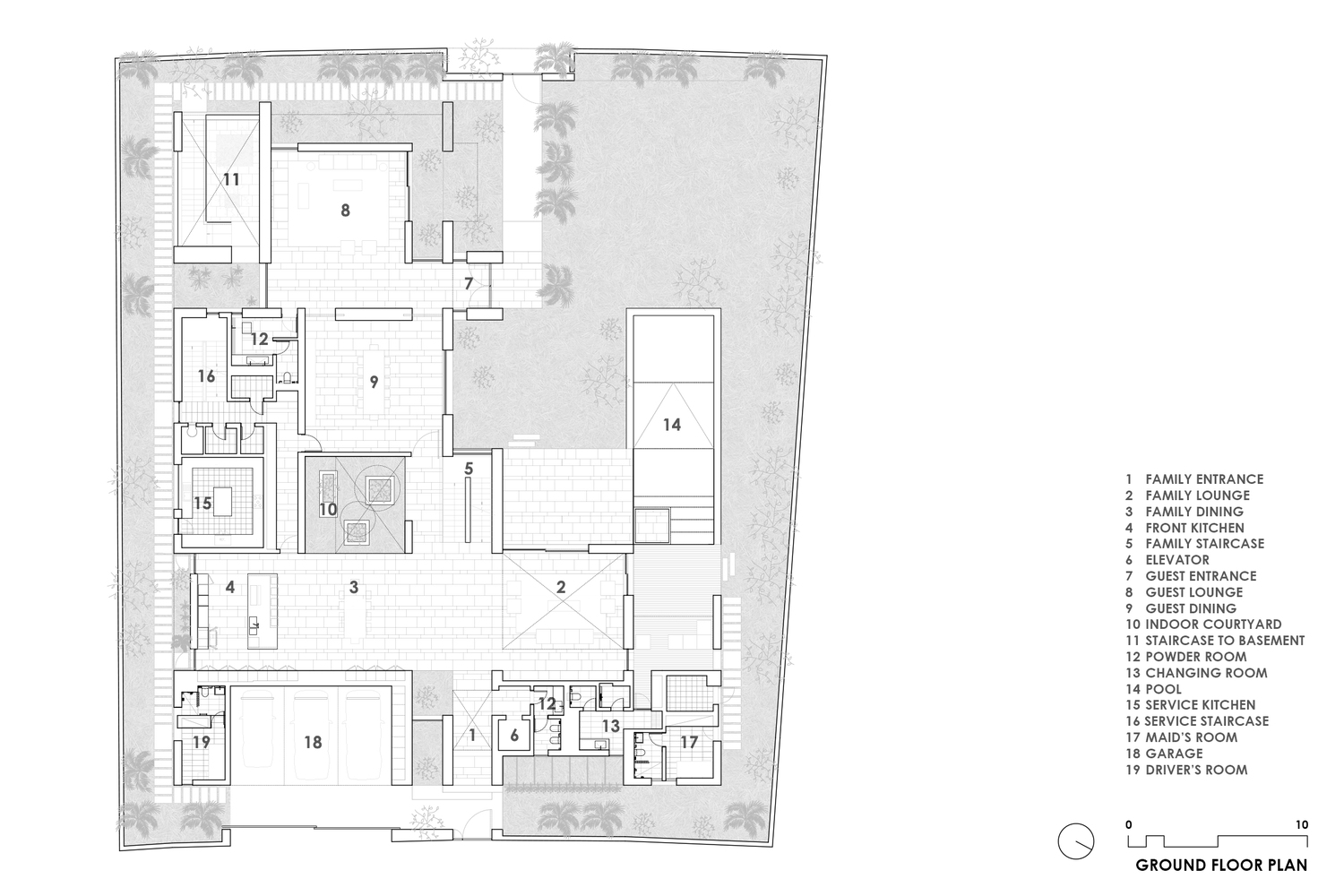
The courtyard garden offers controlled views of landscape and water from the interior, and mashrabiya screens offer views out, but controls views in, particularly important in the local context, animating the façade and interior with a play of light and shadow.
Located in a suburban context, the villa presents itself as a mostly closed volume to the sides and rear, the rectangular form completed by large openings and mashrabiya screens, screened from view from the road by dense vegetation.
To one side is the courtyard garden and pool, a private oasis within the city around which the functions of the villa wrap.
The creation of a micro-climate where the traditional passive cooling techniques of landscape, shading and water cooling reduce the ambient temperature and establish privacy, openness and dappled natural light.
The garden is the preserve of the ground floor living spaces, with strong visual connections with large terraces and lush landscaping inviting the outside in.
A tree filled central courtyard with skylights creates a private internal environment, with natural light streaming from above.
The bedroom suites on first floor are oriented around this courtyard, the master bedroom having a private access, bay window, and private bathroom suite behind the mashrabiya screen, with filtered light playing across natural materials of stone and wood.
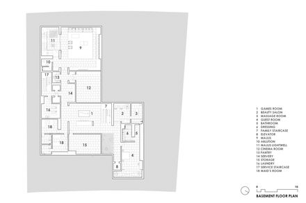
At basement level a large majlis and dining space have views over a sunken courtyard, along with a guest bedroom suite.
All of the service spaces are located in the basement completely hidden from view. The circulation and access carefully managed to maximize efficiency and ensure family privacy.
Natural materials are employed to reinforce the concept of the house - local natural stone walls to the boundary and garden, cut stone fin walls emphasize openings made of natural wood. Mashrabiya screens of bronze aluminium and concrete provide privacy and modulate light to the interiors which are warm and filled with natural light.
























