
Haus 6 in Berlin
ARCHITECTS
Sauerbruch Hutton
SITE SUPERVISION
Söllner Architekten
MANUFACTURERS
FSB Franz Schneider Brakel, Brakel, ELBE Decken, Oranienbaum, Roofinox
HVAC
Planungsbüro Dernbach GmbH
PROJECT MANAGEMENT
Schmideg Gmbh
DESIGN TEAM
Louisa Hutton, Matthias Sauerbruch, Juan Lucas Young, Jürgen Bartenschlag, Vera Hartmann, Falco Herrmann,
DESIGN TEAM
Amelie Hummel, Meta Popp, Karolina Sznajder, Quirin Dilling, Dianer Ding, Serafin Iannaccone, Abigail Yeadon
LANDSCAPE
Sinai Gesellschaft von Landschaftsarchitekten mbH
STRUCTURAL PLANNING
Andreas Külich Ingenieurbüro für Tragwerksplanung
FIRE PROTECTION
hhpberlin Ingenieure für Brandschutz GmbH
BUILDING PHYSICS
Müller-BBM GmbH
YEAR
2017
LOCATION
Berlin, Germany
CATEGORY
Apartments, Coliving
This residential and studio building for a cohousing group of ten parties marks a further step in the revitalisation of Werkhof L57, an ensemble of historic barracks buildings, modern extensions and new buildings, which has grown into a very lively creative quarter during the last two decades.
The new four-storey development occupies a plot between a modern building in exposed concrete and a historic brick building.
Its height and roof shape mediate between these two neighbours, while its strictly rectangular volume respects the regular forms of the former military compound.
At the same time, these lines are virtually dissolved by its subtly wavy cladding of stainless steel sheet, which reflects the surroundings irregularly and thereby lends the façade a fluid character.
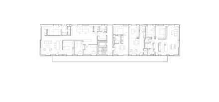
The units display a variety of interior layouts, reflecting the range of different ideas that individual members of the group had about the way in which they want to live and work.
What they all had in common was a desire for maximum flexibility and freedom in the division and use of the spaces, also in the long term.
This was achieved by means of prestressed concrete slabs, which leave the floor area of 47 x 10 m entirely free of columns, and by positioning the service shafts within the depth of the façade.
So that each of the maximum of eight flats per floor can have an outlook to both the north and the south, they are reached along access balconies on the south facade, which are in turn reached from a central staircase.
This creates communal outdoor spaces, which can also be used privately as balconies from the adjoining flats.


























