ARCHITECTS
KPF
LOCATION
Singapore
CATEGORY
Offices, Office Buildings
AREA
24000 m²
YEAR
2018
PHOTOGRAPHS
Tim Griffith
GREENMARK CONSULTANT
Building System & Diagnostics Pte Ltd
MANUFACTURERS
Equitone, Campolonghi, Stone Source, China Southern Glass, Metalplas, Ppg, Quarella
SENIOR DESIGNER
Bob Graustein
PROJECT MANAGER
Debra Asztalos
LANDSCAPE
Grant Associates
LIGHTING CONSUTLANT
Lighting Planners Associates
MEP ENGINEERING CONSULTANT
TY Lin International Group
FAÇADE CONTRACTOR
Yuanda
CONTRACTOR
Woh Hup
DESIGN DIRECTOR
Bruce Fisher
ASSOCIATE ARCHITECT TEAM
A61
GEOTECHNICAL ENGINEER
KTP Consultants
CLIENT
Tuan Sing Holdings
STRUCTURAL ENGINEERS
KTP Consultants
FAÇADE CONSULTANTS
Meinhardt
Text description provided by architect.
The design of 18 Robinson synthesizes the unique conditions that define the urban, environmental and cultural context of contemporary Singapore, resulting in a signature, boutique, and sustainable retail and office tower.
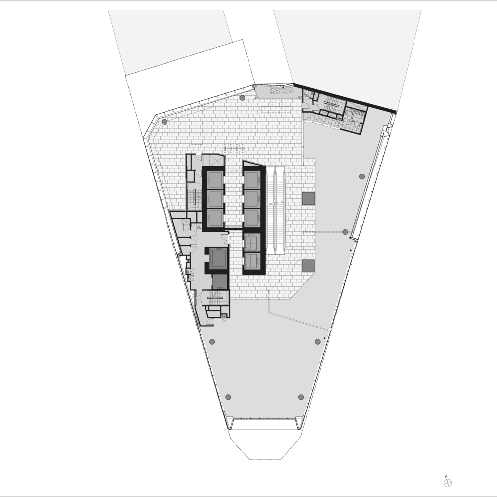
Located at the terminus of the V-shaped intersection of Market Street and Robinson Road, 18 Robinson avails the odd site shape through the balanced elements of the faceted tower.
Two primary volumes, a hovering crystalline office tower and a retail podium, make up the principle building elements.
Keeping with Singapore’s Landscape Replacement Area policy, 18 Robinson offers publicly accessible green space that is equivalent to the site area.
A landscaped podium and rooftop Sky Garden feature planted trees, natural ventilation, and views across the city.
The podium is elevated above the street, enhancing the spaciousness and continuity from the ground level entrance into the atrium garden. The atrium forms the nucleus around which the office lobby, retail, and F&B are organized.
Urban windows facing Robinson Road expose retailers and internal activity while the podium’s materiality and faceted design form a contextual relationship with the angular roof form and terracotta of Lau Pa Sat.
20 office floors extend elegantly above the podium, maximizing the building height and marina views. The angled composition of the tower serves to increase access to natural light, mitigate direct views into adjacent towers, and reflect light to create a gem-like beacon for Singapore





























