SÈMÈONE Center
WORKS
ADSC (Agence de Développement de Sèmè City)
CATEGORY
Other Facilities, Offices, Adaptive Reuse
Text description provided by architect.
The project entailed the restructuring and elevating of an existing unfinished structure into a largescale smart building. A new project, a new program, the building becomes SOMEONE, a formation center, and incubator for the sectors linked to innovation and design, led by the l’Agence de Développement de Sèmè City à Cotonou, Bénin.
The constructive challenge of this project lay in delicately intervening in this build, which was largely unfinished for years, and that had to undergo major structural modifications.
To ensure a subtle and cautious approach, a spirit of urban ecology and bioclimatic conception was adopted.
In this specific case of a deteriorating building, set in an environment where technical means and materials were difficult to access, we proposed our concept and our innovations while always taking care to conserve and to reemploy the existing to the maximum.
The structure is made of columns and beams with hollow floor slabs. The latter is stabilized by hollow chipboard. The whole is braced by the staircase ribs and concrete elevator shaft.
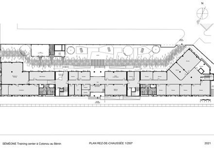
The project is in an equatorial zone, with variable exterior temperatures between 27 to 34°C, with a humidity level of 80% on average. The main volume, which is quite long, boasts a grand linear façade. It is purposefully solid and enclosed to protect itself from the local sunlight conditions.
Therefore, the façades that are more exposed to sunlight (South, East, Ouest), have a double wall system with an airgap of 40cm to increase the walls’ inertia, reduce the thermal fluctuations and ensure a stable climate day and night with an appreciated thermal comfort.
The high acoustic and thermal performance windows are sunken into the back wall to reduce the heat gain. On the other hand, the less sunny North façade has a simple wall with large frames around the openings, oriented to protect from strong sunshine and diffuse a soft light.
To break the horizontality that is deployed over 100 meters, vertical sequences are introduced through the form of the windows, and of the colored shutters that are animated as one moves along the façade.
On the inside, the hall cuts through, bathed in light from a large bay window over the courtyard. The ceiling grid is highlighted through the length of the circulation areas with shades of grey.
The rooms are spread on each side of the central circulation, animated by interior windows that diffuse light and allow a view of the building’s activities. The dispose of vertical openings that spread to the ceilings and floors, breaking up the light into the space.
Two main circulations serve the building, proposing meeting spaces on each floor, where the students/professionals / young entrepreneurs can develop relations of exchange. The floor and walls are revived by a play in colors that draw up the meeting spaces.
SMART BUILDING
The project is conceived to receive “Smart Building” assistance, allowing the transmission and stocking of input concerning the use and state of the building. This way, the users can optimize the use of different actors: Lighting, Climatization, Elevations, Computer networks, Internet connections, Physical security, etc.… and adapt how much it consumes in the function of the needs.
The latter is active and facilitates the measurement of the efficiency of the services, thanks to a system of numeric reservations of each conference room.
THE LANDSCAPE AREA
The landscape area was studies to propose an educational garden that can equally serve as a physical and visual separation from the ministerial mid-rises.
A vegetal palette is elaborated in order to develop biodiversity that supports discovery all while searching for a landscape continuity with the surrounding greenery. Various spaces of relaxation are drawn on each side of the central path with Japanese steps, as spaces of refuge for exterior encounters.
The demolition of some existing parts of the building, that were too deteriorated and non-adapted to the program, as well as the construction of an additional floor, turned out to be necessary.
The openings and existing access are modified and created anew to permit users’ movement to conform to the PMR fire force regulations.
























