House in Tres Rios
LOCATION
Culiacan Rosales, Mexico
AREA
330 m²
YEAR
2020
Text description provided by architect.
The particular way of responding to the context evokes different manners of how the architecture is expressed. Willing to be the simplest household in the neighborhood, the house is free of the ornaments that the different materials tend to evoke, its quality lies in being monochrome.
A solid mass inserted between party walls seems to float as if trying to find lightness in its condition of being heavy and at the same time retracts to be slightly less visible, but inevitably breaks the surrounding plasticity through the contrast of color, shape, and texture.
Its only window is composed of a horizontal opening and a zenith opening, both looking at the same point, as if two eyes were looking through the same lock at the same time, successively, the entire window is pushed and it protects from the southern sun and shades itself.
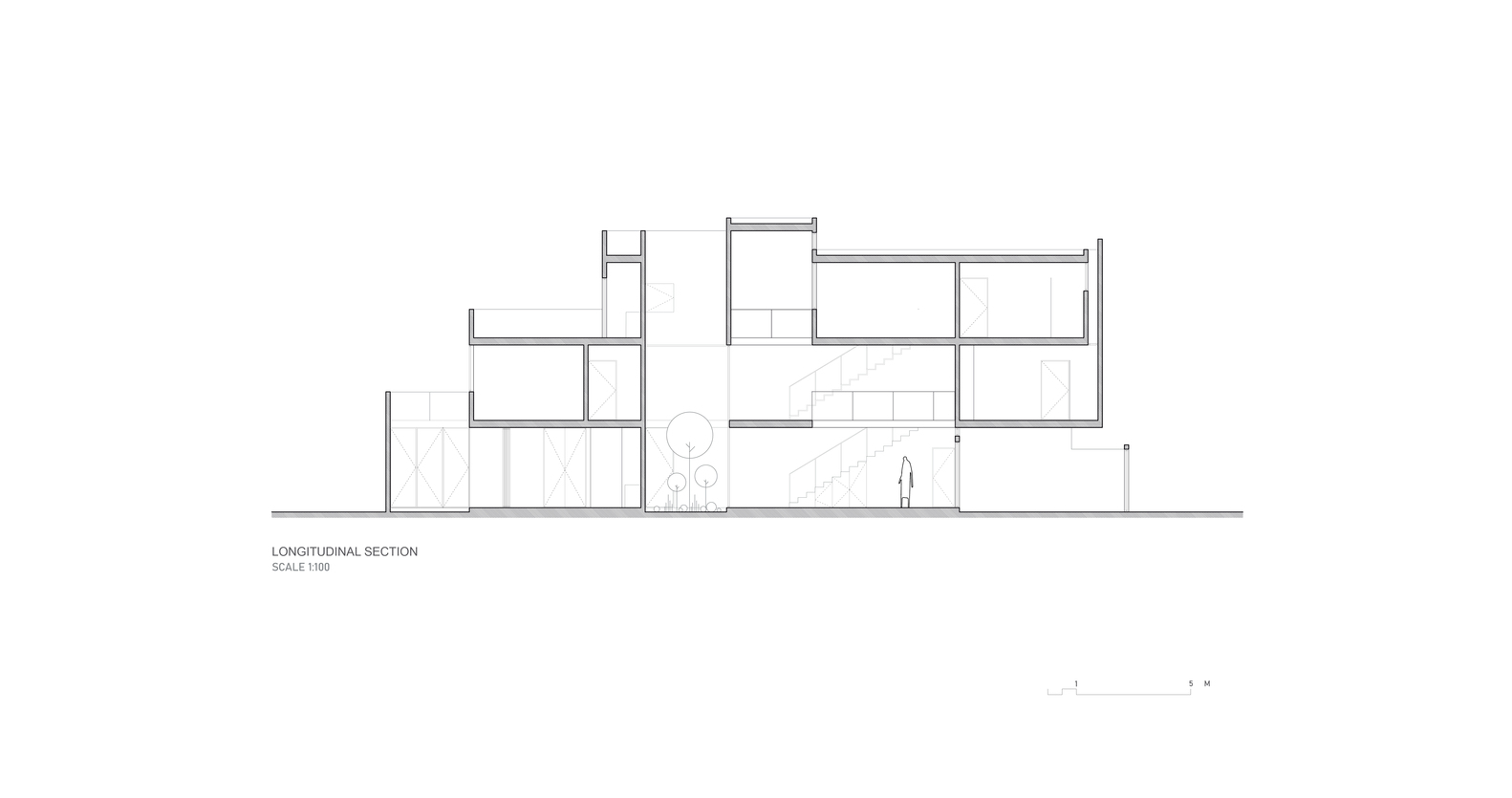
Built on a plot that is longer than it is wide, patios and terraces open to the house, all spaces always turn towards a contained and isolated exterior.
The patio has the quality of being private and quiet, but without losing its exterior condition, these are contemplation spaces par excellence, its condition makes them places capable of being enjoyed from the interior spaces as if it were outside.
The constant of the patios and the exteriors intensifies when their qualities fall on the texture, the color, and the vegetation.
Its interiors devoid of color and texture play the role of blank canvases. The atmosphere of the house comes from the colors.
Between the pink of the patios that bounces and enters the house, and that of the direct overhead yellow light that combines with pink and averages the tones on these neutral surfaces. Giving, as a result, a soft warm atmosphere, changing depending on the natural light and the passing of the day.
The two double heights intertwine and connect the whole house.
When entering and looking up, the gaze is lost and the house is prolonged, the feeling of narrowness is muffled and its condition finds freshness as a result of this spatial quality.




















