Pavillon A
CATEGORY
Houses
LOCATION
Saint-bruno-de-montarville, Canada
PHOTOGRAPHS
Adrien Williams & Raphael Thibodeau
ENGINEERING
Latéral Conseil
MANUFACTURERS
AutoDesk, Alumilex, SICO, Stone Tile, Bonaventure Pools, Envirozone Design, Excel Climatisation, Luminaires & Cie, McNeel, Plani-verre
INTERIOR DESIGN
Bipede
LANDSCAPE
Vertige Landscape
CONTRACTOR
Construction N. Deslauriers
Text description provided by architect.
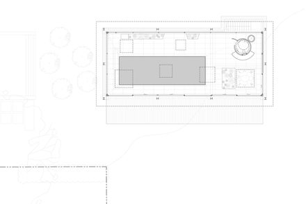
Inspired by Philip Johnson's Glass House and the Ben Rose House from the movie Ferris Bueller's Day Off, Pavilion A is a tribute to modern architecture. Welcoming a four-season swimming pool, this glass pavilion was designed as a veritable oasis in the heart of a garden.
During the long Quebec winters, the space allows to breaststrokes in the swimming pool, relax in the spa, read under a tropical plant, or do yoga while contemplating the snowy nature.
In summer, the pavilion opens onto a long wooden terrace thanks to the large picture windows on one of the facades.
Located outside the glass pavilion, the metal structure gives the roof the impression of floating.
The black exterior structure contrasts with the clear and bright interior. The glass walls let in plenty of natural light and the skylights installed on the ceiling maximize the supply of overhead light while protecting from the summer sun.
The 360-degree glazing removes the border between interior and exterior and contributes to a change of scenery.
The interior layout and its plants on the ground help to create a tropical atmosphere that promotes relaxation. The layout of the large strips of vegetation provides privacy zones whether in the spa, the pool or on the carpet.
At the heart of the pavilion's orthogonal lines stands out the bathroom. Awarded a prize at the 13th edition of the Grand Prix du Design, this cylindrical bathroom elegantly combines beauty and functionality.
Clad in red cedar cleats, this relief column looks like a sculptural element in the pavilion. The warm character of the wood contrasts with the pure and bright interior of the white mosaic.
Particular attention has been paid to the furniture and the finishing details that follow the rounded or cylindrical shape, helping to create a singular and harmonious space. The circular opening in the ceiling from which a shower of natural light springs up reinforces the intimate and exotic character of this daring powder room.
With its modern architecture, its luminous transparency, its tropical touch and its bathroom jewel, Pavilion A magnifies the experience of rest and relaxation offered by this space dedicated to well-being.






















