CONSTRUCTION
Tukuru
PROJECT MANAGER
Kotaro Anzai
LOCATION
Minamisōma, Japan
ENGINEERING
Kenji Nawa, Nawakenji-m
CATEGORY
Houses
Text description provided by architect.
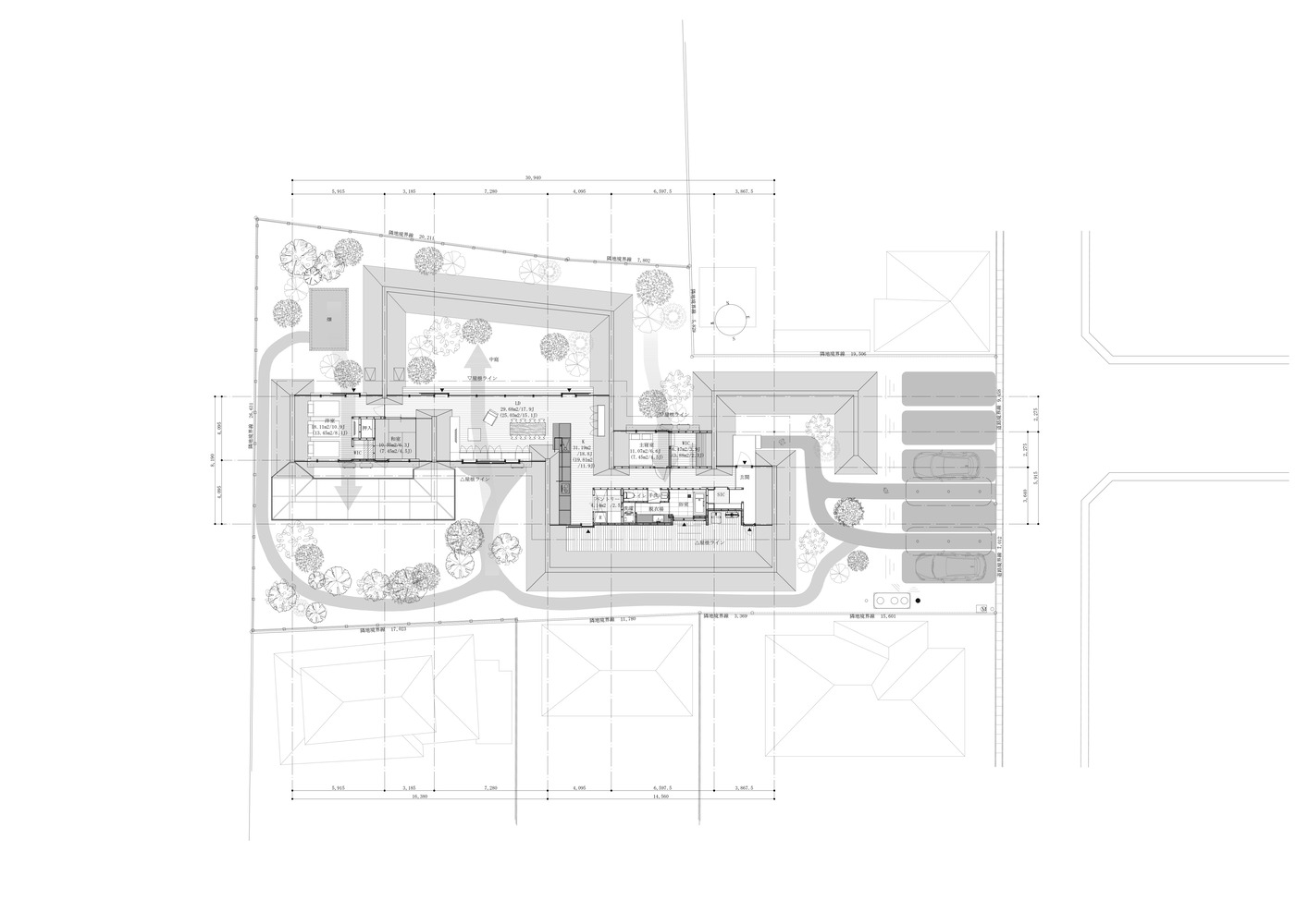
This house is situated in Minamisoma City, Fukushima Prefecture which is famous for a traditional festival: "Soma Nomaoi".
The owner had been living in a place surrounded by beautiful nature before the Great East Japan Earthquake occurred. Because of this disaster, he was forced to move to temporary housing and his family was separated.
The place they decided to build a new house was in a residential district, but they hoped it were in nature such as thick woods. We decided to start by designing a landscape of the entire location first in order to respond to their wish.
During this project, we found that disposal of surplus soil costed much more than our estimation. By getting an idea from a memory of playing with sand during our childhood, we shifted our plan from "disposing" to "utilizing" it as material of construction.
With the soil, we applied civil engineering construction methods to the building. We sprayed the walls covered with expanded polystyrene with a method of EPS civil engineering for the purpose of using both walls inside and outside as a building structure. As a result, we achieved to create an atmosphere which merges with nature.
This house is designed with the concept of balancing "staticity" and "dynamism", "staticity" to reflect in silence and "dynamism" to get down to work. We wish this house will inspire people to think about1 themselves, their family, the region, and society in a comfortable and peaceful way. Moreover, we desire this house built with local material to remain in their hearts as a symbol of the region.














