
Casa 22 Avellaners
MANUFACTURERS
Jung, Neolith, Cortizo, Grohe, Ikea, Ineslam, Santa & Cole, Vondom, Isist, Roca, Schuco
CATAGORY
Houses, Sustainability
LOCATION
Santes Creus, Spain
GEOTECHNICS
Geotec Sl
PRODUCTS USED IN THIS PROJECT
Switches Jung Light Switch - Ls 990
TECHNICAL ARCHITECT
Francisco Herrera
STRUCTURE
Jordi Masdeu
ENERGY AND FACILITIES
Zero Consulting (Ecotec Enginyers Slp)
SUBCONTRACTORS
Aluminis Granollers Sl, Nou Concepte Interiors Sl, Pau Seguí Sunyol, Syg Sa
BUILDER
Construcciones Tomás Gracia Sa, Manumissió 2005 Sl, Jpcp El Fornàs Sl
COLLABORATORS
INDIBIL SOLANS, LARA ARIN, MERITXELL ANGLÈS
YEAR
2020
Text description provided by architect.
The location of this house is part of the expansion of the urban area that was developed in Santes Creus at the end of the 20th century and the beginning of the 21st century to obtain two public pieces for equipment and parking for visitors to the monastery.
In addition, a new residential area of single-family homes was created between dividing walls, which has been consolidated over the last twenty years.
The observation and analysis of the two neighboring houses built in this area showed that the house located to the south makes optimal use of the property and the permitted building volume, therefore, largely covers the natural lighting perceived in our area.
On the other hand, the house located to the north is built on two plots and has a shape and volume more typical of an isolated single-family house.
For this reason, the widest views are the east view (the terrain borders on a mountainous elevation), the north view (because the neighbour has not used the entire volume and the buildable area, , and therefore, from the second floor, the landscape of the area is widely perceived) and the western view (facing the street).
In response to this analysis, Casa 22 Avellaners has three unique strategies.
First, placing a staggered volume that blends in with the different heights of the neighboring buildings.
Secondly, connect this volume with the landscape through openings to the east and west views (on the ground floor and first floor) and to the north view (on the second floor, as soon as the height of the neighbouring building is exceeded) in order to capture the natural light as well as possible and enjoy the best views.
And thirdly, create an empty and complete volumetric relationship between the different rooms inside the house, through the figure of three large cavities (two double spaces and one triple space) inside the full house (the built volume of the house).
This creates internal relationships, both spatial and visual connexions, which intend that the different spaces that make up the project are perceived as spacious, bright and related to each other in an open and continuous way.
To complement the natural light exposure, a skylight is placed on the roof of one of the double space and the triple space where the stairs are located is visually connected to the multipurpose room on the second floor so that the central part of the house is naturally illuminated during the day.
The house articulates its vertical circulation structure through the staircase, which is the main protagonist inside.
It is located in a specific place, so that the connection with each of the three floors is optimal and this element participates in the differently designed spaces.
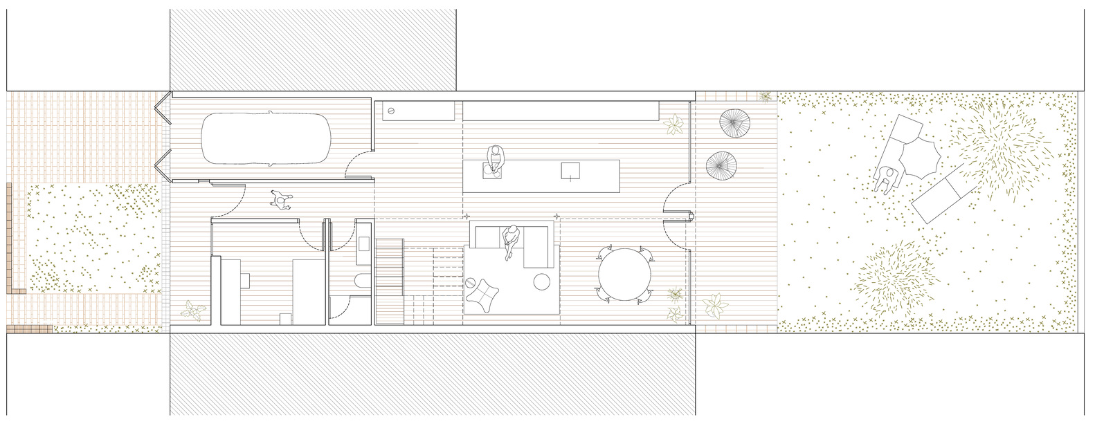
The ground floor contains the access to the house and a linear connection on the visual and access level with the rear garden.
On this floor we find a first strip configured by the garage, a room and a bathroom; and a second strip that consists of a space that integrates the kitchen, living room and dining room and also connecting with the second and third floors through the double and triple spaces, which visually and functionally connect the day area with the study and play area on the first floor and with the multi-purpose room on the second floor.
Two rooms, a terrace and a bathroom on the first floor and a terrace viewpoint on the second floor complete the program.
This has been achieved through passive solar architecture solutions and indirect light detection which, together with the building system itself and a exhaustive study of the composition of the different skins of the building and its thermal behavior, have made this house have obtained a energy certification A.
This creates internal relationships, both spatial and visual connexions, which intend that the different spaces that make up the project are perceived as spacious, bright and related to each other in an open and continuous way.

































