MANUFACTURERS
Autodesk, Alurre, Fascatti Marble, M2 Marble, Trimble Navigation
LOCATION
Karawaci Sub-district, Indonesia
CATEGORY
Houses
AREA
634 m²
YEAR
2019
Text description provided by architect.
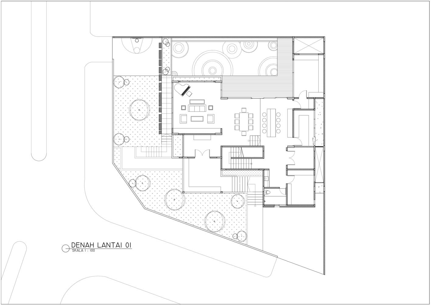
This project is designed for a private client in their 578 m2 empty land located in Karawaci, Indonesia. The design approach in this land is based on client requests where tropical mixed with rustic Balinese design for the main idea of the building.
Tropical Design involves natural lighting and airflow circulation, with the usage of glass and void in particular.
Concepting the design where important areas such as master bedroom, living, Dining, and Pantry will get the best view without forgetting about the privacy of the client.
With the view of the corner area and private swimming pool across it, the building mass is designed based on function, circulation, privacy, and view of those elements.
Façade.
The Goal of Design is not to form massive facade, Architect play on the building composition with different natural resources and transparency cutting through horizontal and vertical line considering the tropical aspect.
The residence is constructed mainly from marble covering the upper half of the building while the first floor using different kinds of materials and color tones.
This will create the effect that the building is floating and breaking the house's massive composition lighter. Grille Woods on the Facade is one of the main points of the building
It breaks the composition of horizontal line building by standing in vertical line among the marble material which becomes the focal point of the house.
Another material like stone covering the pool area, and the textured wall is also a part of the material to create a natural atmosphere inside and outside of the building.
Interior.
On the First Floor, The Living, Dining, and Pantry space are designed with the concept of open space located in between the swimming pool and outdoor area to maximize the view.
To Secure the Privacy of the pool and indoor area, there is randomly placed stone textured walls standing firm with particular spacing to form shades line toward the Living Space.
In between the Spacious living area, there's a stair connecting the first and the second floor, made up of 2.5-inch solid wood.
On the second floor, there are 3 kids’ bedrooms, a small family room, and a master bedroom .
Kids' bedrooms are designed based on their own personality, while in the master bedroom is a simple low bed designed focused on the headboard arranged to form a natural atmosphere in the bedroom.




























