HANEGI PLUS House
ARCHITECTS
Furuya Design Architecture Office
LANDSCAPE DESIGN
Shunichi Furuya, Masato Aki, Hiroki Moteki, Huuta Tanahashi
YEAR
2019
LOCATION
Setagaya-ku, Japan
CATEGORY
Apartments
Text description provided by architect.
Hanegi, Setagaya-ku, Tokyo. A rare location that combines the convenience of being within walking distance of Meidaimae Station(semi central station), with the environmental friendliness of a residential area.
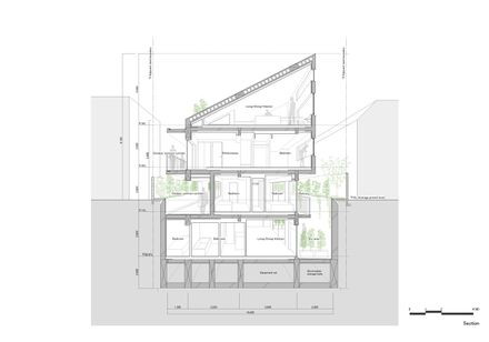
Despite the legal restrictions on the construction of the site, the cross-sectional shape reflects the shape of the building, which has been earnestly acquired the required volume to ensure cost performance as a cooperative-house project.
The façade has a dry area that brings light to the basement and a one-sided roof full of legal restrictions lines that floats from the Grand Level like large feathers.
The tip of the retaining wall that recedes from the site boundary line is squeezed to bring green to the dry area, and the feather-shaped façade and all the green are integrated to connect the cityscape and the plantation in the depth direction.
There are two entrances on the façade that approach the common corridors on the 1st and 2nd floors, because of the plan format in which the basement floor and the 1st floor, and the 2nd and 3rd floors, as maisonette type dwelling units.
In order to secure as much green as possible between each entrance, the three flow lines are all planted, including the evacuation stairs approach to the underground dry area. And the combination of these green spaces makes the relationship between the town and the building borderless.













