
Juquehy Praia Hotel
CATEGORY
Hotels, Cabins & Lodges
LOCATION
Juqueí, Brazil
AREA
500 m²
ARCHITECTS
Piratininga Arquitetos Associados
YEAR
2016
PHOTOGRAPHS
Pedro Napolitano Prata
COEXISTENCE BUILDING AREA
400m²/ 2012
CONSTRUCTION COEXISTENCE BUILDING
Brandão e Marmo
STRUCTURE
Inner
SUPPORT BUILDING AREA
500m²/ 2018
CONSTRUCTION ACCOMMODATION BUILDING
Brandão e Marmo
ACCOMMODATION BUILDING AREA
500m²/ 2016
WOODEN STRUCTURE
Ita Construtora
CONSTRUCTION SUPPORT BUILDING
FOZ
Text description provided by architect.
The buildings in the living area, support, and accommodation are projects that are part of a master plan developed for the Juquehy Praia Hotel, located in an area by the sea, on the beach of Juquehy.
The Living Building was the first of them in 2012, and the circumstances surrounding the project practically gave birth to its architectural solution and its structural wooden system.
It was a renovation in one of the buildings of the Juquehy Praia Hotel and very little was known about its original concrete structure.
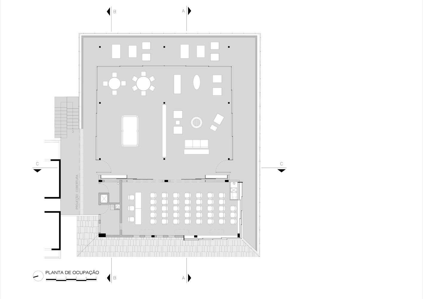
The program suggests an event room integrated with a living area, which serve, among other functions, as a foyer for event participants.
For the Life Building, it was understood that a prefabricated structure should be adopted and assembled on site.
The big issue that the architectural project exposed was the gaps between the proposed pillars and the swings next to the facades being relatively large to the wooden beams traditionally used in the usual constructions.
Piratininga Arquitetos was looking for a light, slender and simple structure so that it landed smoothly and elegantly on the existing structure.
The pillars of the new roof were located on the axles of the reinforced concrete pillars on the lower floor, which, like the beams, underwent structural reinforcement in carbon fiber.
The light framework and the semi-flat roof in a thermoplastic waterproofing mat over cementitious sheets, rock wool and OSB sheets, allowed swings of up to 3.50m forming balconies around the floor.
The vertical closings are made by PVC frames and glass of 2.30 x 2.75m modules, totally opening the room to the outside. A skylight is responsible for the zenith lighting in the main circulation area that gives access to the events room, this separated from the living area by wooden sliding panels.
The acoustic reflection of the environments is solved by wooden acoustic panels hanging from the ceiling and filled with PET wool, strategically positioned by the environments. These function as reverberation attenuators and also house the proposed indirect lighting for the event room area.
For the Accommodation projects, the same structural concept of laminated wood as that used for the Convivence Building was applied, both with bases in concrete structure and the second floor all in wood and glass and masonry fences.
the last two, the roof offers natural ventilation between the ceilings, in order to offer thermal comfort to the user of the dorms (accommodation) and in commercial environments (support).
The structural system is an adequate constructive solution and at the same time it composes the new language and architectural unit of the Hotel.






















