
House in The Poplar
ARCHITECTS
MIDE architetti
LOCATION
Scorze, Italy
CATEGORY
Houses
AREA
490 m²
YEAR
2018
CONSULTANTS
Le Groupe Tosatto Costruzioni S.r.l.
LEAD ARCHITECTS
Fabrizio Michielon, Sergio De Gioia
Text description provided by architect.
Behind the project, there is the desire to enhance the existing context, by re-interpreting the peculiarity of the rural buildings in a contemporary key.
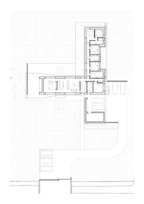
The wide plot of land, bordered by a watercourse, allowed to design a single-story building with a double pitch roof.
To reduce the visual impact of the new building, the project includes a T-shaped floor plan, allowing for a better orientation of the rooms, each with a different destination.
The house is characterized by a deep continuity between the internal and the external spaces and the generous natural illumination characterize the interior spaces: the large stained glass windows in the living room permit to further enlarge the space, constantly mutating during the day.
Designing and building a house in Veneto’s countryside means interacting with the building techniques of the traditional rural constructions, choosing specific materials, and recalling shapes and suggestions.
The roof of the living space is realized with timber beams recovered from the demolition of the decks of ancient villas.
The building reminds the atmospheres of these places and the chromatism of the surrounding environment.
The project’s materials and surfaces have been chosen from a careful evaluation of the site.
The external concrete walls are characterized by a rough surface obtained with a special formwork that has the print of a typical cane field that can be found in the countryside of Veneto.
Some typical agricultural components, such as the spontaneous vegetation next to the porch and the wooden overhanging roof are used as solar protection devices. The project merges the traditional and contemporary construction techniques.



























