
The Layered Gallery
CATEGORY
Gallery
LOCATION
London, United Kingdom
PHOTOGRAPHS
Luigi Parise
ARCHITECTS
Gianni Botsford Architects
LANDSCAPE ARCHITECT
Todd Longsaffe-Gowan
MANUFACTURERS
Lagares, Lazenby, Palladio, Roshults, Cameron Bloom, Dolce Steel Novo, Hunza Outdoor Lighting, Thresher Fabrications
SERVICES ENGINEER
Pearce and Associates
CONTRACTOR
Verona Construction
YEAR
2016
STRUCTURAL ENGINEER
TALL
QUANTITY SURVEYOR
David Parker
HISTORICAL CONSULTANT
Mitchell Taylor Workshop
LANSCAPE ARCHITECT
Todd Longsaffe-Gowan
PLANNING AUTHORITY
Camden
BUILDING CONTROL
Camd
Text description provided by architect.
The Layered Gallery, located in central London, houses a private collection of photographs, prints, pastels and lithographs. The five-storey Grade II listed building it is extended from dates from 1770.
The aim of client and architect has been to create an enclosed courtyard structure that provides a retreat and place to contemplate art.
This has been achieved by adding a new elevation to the building both substantial and sufficiently light to bring life into what is now a garden-like inner court.
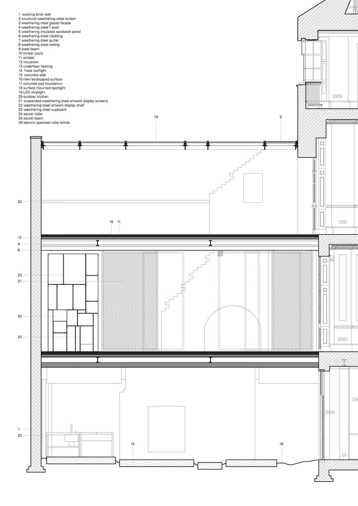
To achieve this, Gianni Botsford Architects has designed a sequence of screens creating a layered effect. The first, outer screen is purely structural and made of Corten, or ‘weathering’ steel.
The second is a Corten-framed glazed screen. Inside, a further layered effect is achieved through red blinds protecting the collection of artworks and the hanging of Corten screens on rails used for storing and viewing the collection.
The openings within the two outer screens create a filigree elevation reinforcing the relationship between interior and exterior spaces. This is emphasised further by planting growing up within the Corten structure.
Inside, finishes are robust in much the same way as warehouses or stores that have been converted into art galleries.
On the ground floor, an existing exposed brick wall is contrasted with a Corten cabinet designed by Gianni Botsford Architects.
The cabinet introduces an element of uncertainty within the space: it conceals a folding WC. A homage to the traditional outside lavatory, or a play, perhaps on Duchamp’s “Fountain”, this gesture adds a sense of surprise and transformation.
On the lower ground level, the architects have placed an outdoor kitchen and, on the first floor, a viewing bench in a sun trap within the Gallery itself. Museum quality UV- treated glazing has been used throughout to protect the collection from excessive light.
However, the architects have been at pains to avoid the hermetic effects that can result from an environment designed purely to protect and conserve its contents. The filigree quality of the screens is a key component in this approach.
Another theme Gianni Botsford Architects have embraced is that of the ephemeral. The pre-rusted Corten surfaces achieve this, for example, by evoking the notion of ageing though time.
The architects liken the building to a tree, because its structure has two load-bearing columns in the centre with lighter membranes branching out.
Trees, of course, are layered structures that shift with changes in weather as does the Layered Gallery with the variation of light and reflections on its glass panels.

























