
Brincante Institute
MANUFACTURERS
Hormann, Abividro, Cia da Iluminação, Isofibras, Jansen + SC esquadrias, Líder Móveis especiais, Tecnosystem, Zanchet
AIR CONDITIONING
Tottal Tecnologia Térmica
ACOUSTICS
Acústica e Sônica
DESIGN TEAM
Thiago Bernardes, Dante Furlan, Rafael Oliveira, Maria Vittoria Oliveira, Marcelo Dondo, Ana Paula Endo, Mary Helle Moda e Flavio Faggion
CENOTECHNICS
AtendTudo
CONSTRUCTION COMPANY
Alfama Construtora
FOUNDATIONS
Appogeo
ELECTRICAL AND HYDRAULIC INSTALLATIONS
Smart Service
STRUCTURAL PROJECT
LHG Engenharia
LANDSCAPING
Cenário Paisagismo
LIGHTING DESIGN
Foco Iluminação
CENOTECHNICS SUPPORT AND SPONSORSHIP
Instituto Alfa
Text description provided by architect.
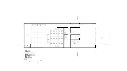
The program of the new headquarters of the Brincante Institute includes an auditorium for approximately 80 people, a rehearsal room, an administrative area, and enough storage room for musical instruments, costumes and props.
The architectural concept emphasizes direct communication between the building and the street, strengthening its relationship to the neighborhood, Vila Madalena, where the Institute has been located for decades.
The main entrance creates a flexible open space where the box-office and an access tunnel to the auditorium are located.
The helical staircase on the left side connects three levels: ground floor, mezzanine and upper deck.
The mezzanine serves as a transition and gathering space connected to the auditorium.
It also serves as an extension of the ground floor foyer, allowing direct access to the seats located on the upper level and to a bridge created over the stage area.
This bridge expands the capacity of the auditorium and enables artistic interventions in two levels while giving access to a garden on the back of the stage.
The upper deck is composed of meeting and dressing rooms, office and small kitchen, and a multipurpose room, which opens up to a large glass window that is partially shaded by the wooden skin of the building and by the slanted roof.


















