
Caltech Chen Neuroscience Research Building
ARCHITECTS
SmithGroup
AREA
150000 ft²
PHOTOGRAPHS
Randall Howard, Ian Allen, Mark Zajdzinski, John Linden
MANUFACTURERS
Terrazzo & Marble
ARCHITECT OF RECORD
Bill Diefenbach
STRUCTURAL
Saiful Bouquet Structural Engineers
CIVIL
KPFF Consulting Engineers
LANDSCAPE
Spurlock Landscape Architects
ACOUSTICS
Colin Gordon Acoustics
PROJECT EXECUTIVE
Bonnie Khang-Keating
PRINCIPAL IN CHARGE
Sandro Bressi
DESIGN PRINCIPAL
Francisco Owens
PROJECT MANAGER
Kimberly Kilgour
LEAD INTERIOR DESIGNER
Kayoung Yu
PROJECT ARCHITECT
Cathy Pack, Mark Zajdzinski, Robert Crawford
LEED SPECIALIST
Harshana Thimmanna
LEAD LAB PLANNER
Alex Munoz
LIGHTING DESIGNER
Matt Alleman
BUILDING TECHNOLOGY SPECIALIST
Andrew Dunlap
CLIENT
California Institute of Technology
YEAR
2021
GENERAL CONTRACTOR
Hensel Phelps
MECHANICAL, ELECTRICAL & PLUMBING
Affiliated Engineers
DATA
The Sextant Group
WIND
CPP
LOCATION
Pasadena, United States
CATEGORY
Research Center
Text description provided by architect.
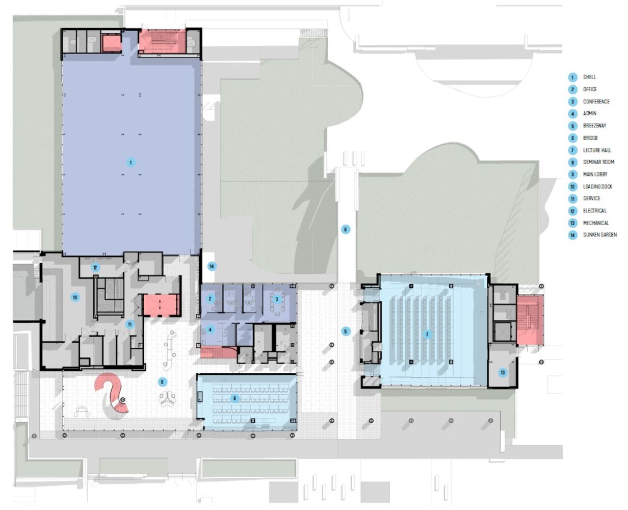
At the Chen Neuroscience Research Building’s center is a space called the 'Nucleus'. It visually connects all Principal Investigator offices, formal and informal meeting spaces.
A skylight lined with glass tiles bathes the space in light from above with a softly shimmering glow. This space stands in contrast to the systematic order of the laboratories through a fluid and organic expression.
The Nucleus' emotional intent is to inspire and reflect the moment of a scientific breakthrough. Like a clearing in the forest that gives one a sense of discovery, the Nucleus aspires to bring the research groups together around their central purpose of understanding our human mind.
Mimicking the helix linking pieces of DNA, the entrance lobby reveals a serpentine stair that meanders up into the building’s nucleus and central gathering space. This journey is not linear and the arrival at the Nucleus is unexpected.
Transparency and order are the guiding concepts for the laboratories. Glass walls and doors ensure natural light and ease of movement between computational work and environmentally controlled research space.
Equipment and systems are thoughtfully organized and unified through a warm color palette with accents of color that act as coded elements to ease wayfinding. These gestures come together with the intent of bringing a softer, more human touch to spaces dedicated to hard science.
Working collaboratively with the stakeholders and research teams, we worked organically through the discovery process, and like putting puzzle pieces together, created an organized system of circulation paths, focus spaces, open offices, and lab space that maximize flexibility and bring daylight into the deepest part of the core building.
This organized system of serendipitous circulation and collaborative spaces intentionally set out to create a collision of cross-scientific research group collaboration.
Using design as a means to foster and promote these spontaneous interactions, it was critical to ensure these public areas were warm and inviting.
With an integrative design specifically designed to foster learning and interaction among the world’s top neuroscientists, the Chen Neuroscience Research Building brings researchers one step closer to unlocking the great mysteries of the brain.
This project’s strong architectural vision and planning to foster collaboration and serendipitous interaction, the new Chen Neuroscience Research Building is an exploration of open connected spaces filled with natural daylight and views.
The result is a place to focus, postulate, imagine and conduct the rigorous discourse necessary to unravel the foundations of the human mind and propel science forward as we better understand the capacity and intricacies of the brain.

















